Elected Officials
Courts
Departments
Initiatives
Open Government
About
Login / Register
Home
/
Property & Tax Records
/
Property Records
/
Property & Tax Search
/
Parcel Profile
/
Print View
Search for Another Parcel
Parcel Profile
Historical Card
Sketches
Photos
Tax Map
Taxes
Print View
Print This Page
Address: 71 E DIVISION ST
Parcel: 36002013000600
Parcel Profile
Address
71 | E | DIVISION | ST
Street Status
PAVED | SIDEWALK
School District
NORTH EAST SCHOOL
Acreage
0.2893
Classification
R
Land Use Code
SINGLE FAMILY
Legal Description
71 E DIVISION 70 X 180
Square Feet
2033
Topo
LEVEL
Utility
ALL PUBLIC
Zoning
Please contact your municipal zoning officer
Deed Book
0794
Deed Page
1593
2026 Tax Values
Land Value / Taxable
22,200 / 22,200.00
Building Value / Taxable
115,300 / 115,300.00
Total Value / Taxable
137,500 / 137,500.00
Clean & Green
Inactive
Homestead Status
Active
Farmstead Status
Inactive
Lerta Amount
0
Lerta Expiration Year
0
Residential Data
Card 1
Style
CONVENTIONAL
Basement
FULL
Year Built
1937
Exterior Wall
ALUMINUM/VINYL
Total Living Area
2033
Full Baths
2
Half Baths
0
Fuel Type
GAS
Heating
CENTRAL A/C
Heating System
FORCED AIR
Stories
1.5
Total Bedrooms
3
Total Family Rooms
1
Total Rooms
7
Fireplaces
1
Other Buildings & Yards
Description
Built
Width
Length
Area
FOUR SIDE CLOSED MTL POLE BLDG
2004
24
32
768
Sales History
Sale Date
Type
Price
Book / Page
Other Info
7/23/2001
0
0794 / 1593
4/1/1996
LAND & BUILDING
64000
432 / 1798
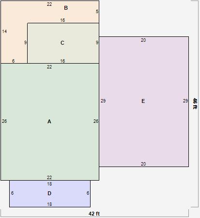
Parcel Sketches
Residential Card 1
A
MAIN
572 square feet
B
OMP OPEN MASONRY PORCH 1S FR ONE STORY FRAME
164 square feet
C
1S FR ONE STORY FRAME 1S FR ONE STORY FRAME
144 square feet
D
OFP OPEN FRAME PORCH
108 square feet
E
1S FR ONE STORY FRAME
580 square feet
Parcel Images
Please note:
this tab is for informational purposes only and may not show all delinquencies, see the Taxes tab for more accurate delinquent taxes due.