Elected Officials
Courts
Departments
Initiatives
Open Government
About
Login / Register
Home
/
Property & Tax Records
/
Property Records
/
Property & Tax Search
/
Parcel Profile
/
Print View
Search for Another Parcel
Parcel Profile
Historical Card
Sketches
Photos
Tax Map
Taxes
Print View
Print This Page
Address: 18 PERSHING AVE
Parcel: 36002014002100
Parcel Profile
Address
18 | PERSHING | AVE
Street Status
PAVED | SIDEWALK
School District
NORTH EAST SCHOOL
Acreage
0.1722
Classification
R
Land Use Code
SINGLE FAMILY
Legal Description
18 PERSHING 50X150
Square Feet
1587
Topo
LEVEL
Utility
ALL PUBLIC
Zoning
Please contact your municipal zoning officer
Deed Book
2021
Deed Page
032644
2026 Tax Values
Land Value / Taxable
20,600 / 20,600.00
Building Value / Taxable
69,400 / 69,400.00
Total Value / Taxable
90,000 / 90,000.00
Clean & Green
Inactive
Homestead Status
Inactive
Farmstead Status
Inactive
Lerta Amount
0
Lerta Expiration Year
0
Residential Data
Card 1
Style
OLD STYLE
Basement
FULL
Year Built
1926
Exterior Wall
FRAME
Total Living Area
1587
Full Baths
1
Half Baths
0
Fuel Type
GAS
Heating
CENTRAL
Heating System
FORCED AIR
Stories
2.0
Total Bedrooms
4
Total Family Rooms
1
Total Rooms
8
Fireplaces
1
Other Buildings & Yards
Description
Built
Width
Length
Area
FRAME OR CB DETACHED GARAGE
1926
20
28
560
Sales History
Sale Date
Type
Price
Book / Page
Other Info
12/9/2021
LAND & BUILDING
0
2021 / 032644
QUIT CLAIM DEED
3/28/1984
0
1530 / 0051
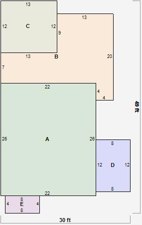
Parcel Sketches
Residential Card 1
A
MAIN
572 square feet
B
UNFIN BSMT BASEMENT UNFINISHED 1S FR ONE STORY FRAME
315 square feet
C
WDDCK WOOD DECKS
156 square feet
D
UNFIN BSMT BASEMENT UNFINISHED 1S FR ONE STORY FRAME
96 square feet
E
1S FR ONE STORY FRAME
32 square feet
Parcel Images
Please note:
this tab is for informational purposes only and may not show all delinquencies, see the Taxes tab for more accurate delinquent taxes due.