Elected Officials
Courts
Departments
Initiatives
Open Government
About
Login / Register
Home
/
Property & Tax Records
/
Property Records
/
Property & Tax Search
/
Parcel Profile
/
Print View
Search for Another Parcel
Parcel Profile
Historical Card
Sketches
Photos
Tax Map
Taxes
Print View
Print This Page
Address: 13 E DIVISION ST
Parcel: 36002015000400
Parcel Profile
Address
13 | E | DIVISION | ST
Street Status
PAVED | SIDEWALK
School District
NORTH EAST SCHOOL
Acreage
0.3606
Classification
R
Land Use Code
SINGLE FAMILY
Legal Description
13 E DIVISION ST 68 X 231
Square Feet
1570
Topo
LEVEL
Utility
ALL PUBLIC
Zoning
Please contact your municipal zoning officer
Deed Book
2021
Deed Page
007312
2026 Tax Values
Land Value / Taxable
23,100 / 23,100.00
Building Value / Taxable
39,700 / 39,700.00
Total Value / Taxable
62,800 / 62,800.00
Clean & Green
Inactive
Homestead Status
Active
Farmstead Status
Inactive
Lerta Amount
0
Lerta Expiration Year
0
Residential Data
Card 1
Style
OLD STYLE
Basement
PART
Year Built
1920
Exterior Wall
COMPOSITION
Total Living Area
1570
Full Baths
2
Half Baths
0
Fuel Type
GAS
Heating
CENTRAL
Heating System
FORCED AIR
Stories
2.0
Total Bedrooms
3
Total Family Rooms
0
Total Rooms
7
Fireplaces
1
Other Buildings & Yards
Description
Built
Width
Length
Area
FLAT BARN
1920
20
30
600
Sales History
Sale Date
Type
Price
Book / Page
Other Info
3/29/2021
LAND & BUILDING
178000
2021 / 007312
SPECIAL WARRANTY DEED
9/24/2019
LAND & BUILDING
45000
2019 / 019227
SPECIAL WARRANTY DEED
9/24/2019
LAND & BUILDING
0
2019 / 019226
CORRECTIVE DEED
7/26/2010
LAND & BUILDING
50000
2010 / 018086
DEED
4/29/2003
LAND & BUILDING
0
1004 / 1319
AFFIDAVIT
8/1/1990
0
0132 / 0001
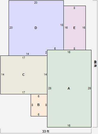
Parcel Sketches
Residential Card 1
A
MAIN
448 square feet
B
1S FR ONE STORY FRAME
48 square feet
C
UNFIN BSMT BASEMENT UNFINISHED 1S FR ONE STORY FRAME
238 square feet
D
1S FR ONE STORY FRAME
388 square feet
E
EFP ENCL FRAME PORCH
128 square feet
Parcel Images
Please note:
this tab is for informational purposes only and may not show all delinquencies, see the Taxes tab for more accurate delinquent taxes due.