Elected Officials
Courts
Departments
Initiatives
Open Government
About
Login / Register
Home
/
Property & Tax Records
/
Property Records
/
Property & Tax Search
/
Parcel Profile
/
Print View
Search for Another Parcel
Parcel Profile
Historical Card
Sketches
Photos
Tax Map
Taxes
Print View
Print This Page
Address: 21 E DIVISION ST
Parcel: 36002015000700
Parcel Profile
Address
21 | E | DIVISION | ST
Street Status
PAVED | SIDEWALK
School District
NORTH EAST SCHOOL
Acreage
0.2833
Classification
R
Land Use Code
SINGLE FAMILY
Legal Description
21 E DIVISION ST 60.3 X 218.8
Square Feet
1140
Topo
LEVEL
Utility
ALL PUBLIC
Zoning
Please contact your municipal zoning officer
Deed Book
1406
Deed Page
0214
2026 Tax Values
Land Value / Taxable
22,100 / 22,100.00
Building Value / Taxable
38,960 / 38,960.00
Total Value / Taxable
61,060 / 61,060.00
Clean & Green
Inactive
Homestead Status
Inactive
Farmstead Status
Inactive
Lerta Amount
0
Lerta Expiration Year
0
Residential Data
Card 1
Style
OLD STYLE
Basement
FULL
Year Built
1920
Exterior Wall
FRAME
Total Living Area
1140
Full Baths
1
Half Baths
0
Fuel Type
GAS
Heating
CENTRAL
Heating System
FORCED AIR
Stories
2.0
Total Bedrooms
4
Total Family Rooms
1
Total Rooms
8
Fireplaces
0
Other Buildings & Yards
No OBY Data Found
Sales History
Sale Date
Type
Price
Book / Page
Other Info
4/4/2007
LAND & BUILDING
38500
1406 / 0214
DEED
2/6/2007
LAND & BUILDING
0
1393 / 2139
SHERIFF'S DED
12/2/1998
0
0603 / 1487
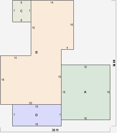
Parcel Sketches
Residential Card 1
A
MAIN
288 square feet
B
UNFIN BSMT BASEMENT UNFINISHED 1S FR ONE STORY FRAME
564 square feet
C
OFP OPEN FRAME PORCH
42 square feet
D
WDDCK WOOD DECKS
112 square feet
Parcel Images
Please note:
this tab is for informational purposes only and may not show all delinquencies, see the Taxes tab for more accurate delinquent taxes due.