Elected Officials
Courts
Departments
Initiatives
Open Government
About
Login / Register
Home
/
Property & Tax Records
/
Property Records
/
Property & Tax Search
/
Parcel Profile
/
Print View
Search for Another Parcel
Parcel Profile
Historical Card
Sketches
Photos
Tax Map
Taxes
Print View
Print This Page
Address: 6 ORCHARD BCH RD
Parcel: 36003008002201
Parcel Profile
Address
6 | ORCHARD BCH | RD
Street Status
PAVED | SIDEWALK
School District
NORTH EAST SCHOOL
Acreage
1.4480
Classification
R
Land Use Code
SINGLE FAMILY
Legal Description
6 ORCHARD BEACH RD LOT A-2 1.448 AC NET | REF MB 34-39
Square Feet
2092
Topo
LEVEL
Utility
ALL PUBLIC
Zoning
Please contact your municipal zoning officer
Deed Book
2014
Deed Page
000443
2025 Tax Values
Land Value / Taxable
32,800 / 32,800.00
Building Value / Taxable
51,810 / 51,810.00
Total Value / Taxable
84,610 / 84,610.00
Clean & Green
Inactive
Homestead Status
Active
Farmstead Status
Inactive
Lerta Amount
0
Lerta Expiration Year
0
Residential Data
Card 1
Style
CONVENTIONAL
Basement
PART
Year Built
1900
Exterior Wall
ALUMINUM/VINYL
Total Living Area
2092
Full Baths
1
Half Baths
0
Fuel Type
GAS
Heating
CENTRAL
Heating System
HOT WATER
Stories
2.0
Total Bedrooms
3
Total Family Rooms
0
Total Rooms
6
Fireplaces
0
Other Buildings & Yards
No OBY Data Found
Sales History
Sale Date
Type
Price
Book / Page
Other Info
1/8/2014
LAND & BUILDING
0
2014 / 000443
DEED
2/20/1990
0
0113 / 0774
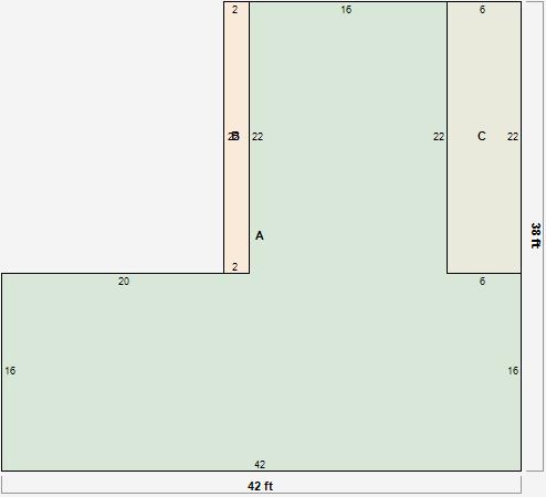
Parcel Sketches
Residential Card 1
A
MAIN
1024 square feet
B
FROVR FRAME OVERHANG
44 square feet
C
OFP OPEN FRAME PORCH
132 square feet
Parcel Images