Elected Officials
Courts
Departments
Initiatives
Open Government
About
Login / Register
Home
/
Property & Tax Records
/
Property Records
/
Property & Tax Search
/
Parcel Profile
/
Print View
Search for Another Parcel
Parcel Profile
Historical Card
Sketches
Photos
Tax Map
Taxes
Print View
Print This Page
Address: 22 S WASHINGTON ST
Parcel: 36004035001300
Parcel Profile
Address
22 | S | WASHINGTON | ST
Street Status
PAVED | SIDEWALK
School District
NORTH EAST SCHOOL
Acreage
0.1458
Classification
R
Land Use Code
SINGLE FAMILY
Legal Description
22 S WASHINGTON 50 X 127
Square Feet
1702
Topo
LEVEL
Utility
ALL PUBLIC
Zoning
Please contact your municipal zoning officer
Deed Book
2022
Deed Page
022701
2025 Tax Values
Land Value / Taxable
19,600 / 19,600.00
Building Value / Taxable
95,300 / 95,300.00
Total Value / Taxable
114,900 / 114,900.00
Clean & Green
Inactive
Homestead Status
Active
Farmstead Status
Inactive
Lerta Amount
0
Lerta Expiration Year
0
Residential Data
Card 1
Style
OLD STYLE
Basement
FULL
Year Built
1930
Exterior Wall
ALUMINUM/VINYL
Total Living Area
1702
Full Baths
2
Half Baths
0
Fuel Type
GAS
Heating
CENTRAL
Heating System
FORCED AIR
Stories
2.0
Total Bedrooms
4
Total Family Rooms
0
Total Rooms
8
Fireplaces
0
Other Buildings & Yards
Description
Built
Width
Length
Area
FRAME OR CB DETACHED GARAGE
1930
16
34
544
CANOPY
1960
7
34
238
Sales History
Sale Date
Type
Price
Book / Page
Other Info
10/20/2022
LAND & BUILDING
118250
2022 / 022701
SPECIAL WARRANTY DEED
6/30/2014
LAND & BUILDING
0
2014 / 012998
DEED
3/12/1991
0
0152 / 1288
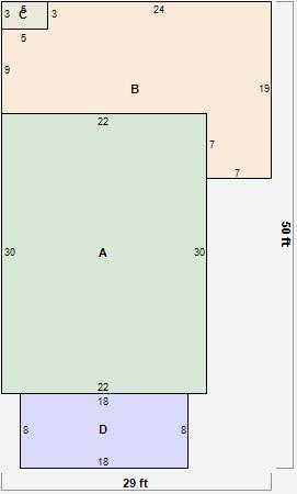
Parcel Sketches
Residential Card 1
A
MAIN
660 square feet
B
1S FR ONE STORY FRAME
382 square feet
C
MA STOOP/TERR MAS STOOP
15 square feet
D
EFP ENCL FRAME PORCH
144 square feet
Parcel Images