Elected Officials
Courts
Departments
Initiatives
Open Government
About
Login / Register
Home
/
Property & Tax Records
/
Property Records
/
Property & Tax Search
/
Parcel Profile
/
Print View
Search for Another Parcel
Parcel Profile
Historical Card
Sketches
Photos
Tax Map
Taxes
Print View
Print This Page
Address: 20 S WASHINGTON ST
Parcel: 36004035001400
Parcel Profile
Address
20 | S | WASHINGTON | ST
Street Status
PAVED | SIDEWALK
School District
NORTH EAST SCHOOL
Acreage
0.1778
Classification
R
Land Use Code
SINGLE FAMILY
Legal Description
20 S WASHINGTON ST 61 X 127
Square Feet
1620
Topo
LEVEL
Utility
ALL PUBLIC
Zoning
Please contact your municipal zoning officer
Deed Book
0181
Deed Page
0145
2026 Tax Values
Land Value / Taxable
20,700 / 20,700.00
Building Value / Taxable
75,800 / 75,800.00
Total Value / Taxable
96,500 / 96,500.00
Clean & Green
Inactive
Homestead Status
Active
Farmstead Status
Inactive
Lerta Amount
0
Lerta Expiration Year
0
Residential Data
Card 1
Style
OLD STYLE
Basement
FULL
Year Built
1930
Exterior Wall
FRAME
Total Living Area
1620
Full Baths
1
Half Baths
0
Fuel Type
GAS
Heating
CENTRAL
Heating System
FORCED AIR
Stories
2.0
Total Bedrooms
3
Total Family Rooms
0
Total Rooms
6
Fireplaces
0
Other Buildings & Yards
Description
Built
Width
Length
Area
FRAME OR CB DETACHED GARAGE
1930
12
20
240
Sales History
Sale Date
Type
Price
Book / Page
Other Info
10/18/1991
0
0181 / 0145
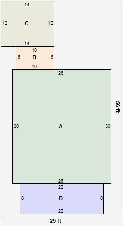
Parcel Sketches
Residential Card 1
A
MAIN
780 square feet
B
1S FR ONE STORY FRAME
60 square feet
C
WDDCK WOOD DECKS
168 square feet
D
OFP OPEN FRAME PORCH
176 square feet
Parcel Images
Please note:
this tab is for informational purposes only and may not show all delinquencies, see the Taxes tab for more accurate delinquent taxes due.