Elected Officials
Courts
Departments
Initiatives
Open Government
About
Login / Register
Home
/
Property & Tax Records
/
Property Records
/
Property & Tax Search
/
Parcel Profile
/
Print View
Search for Another Parcel
Parcel Profile
Historical Card
Sketches
Photos
Tax Map
Taxes
Print View
Print This Page
Address: 16 S WASHINGTON ST
Parcel: 36004035001500
Parcel Profile
Address
16 | S | WASHINGTON | ST
Street Status
PAVED | SIDEWALK
School District
NORTH EAST SCHOOL
Acreage
0.2070
Classification
R
Land Use Code
SINGLE FAMILY
Legal Description
16 S WASHINGTON 71 X 127
Square Feet
1726
Topo
LEVEL
Utility
ALL PUBLIC
Zoning
Please contact your municipal zoning officer
Deed Book
0673
Deed Page
2047
2025 Tax Values
Land Value / Taxable
21,100 / 21,100.00
Building Value / Taxable
69,900 / 69,900.00
Total Value / Taxable
91,000 / 91,000.00
Clean & Green
Inactive
Homestead Status
Active
Farmstead Status
Inactive
Lerta Amount
0
Lerta Expiration Year
0
Residential Data
Card 1
Style
RANCH
Basement
FULL
Year Built
1935
Exterior Wall
ALUMINUM/VINYL
Total Living Area
1726
Full Baths
1
Half Baths
0
Fuel Type
GAS
Heating
CENTRAL
Heating System
FORCED AIR
Stories
1.0
Total Bedrooms
3
Total Family Rooms
0
Total Rooms
5
Fireplaces
0
Other Buildings & Yards
No OBY Data Found
Sales History
Sale Date
Type
Price
Book / Page
Other Info
11/16/1999
LAND & BUILDING
65000
0673 / 2047
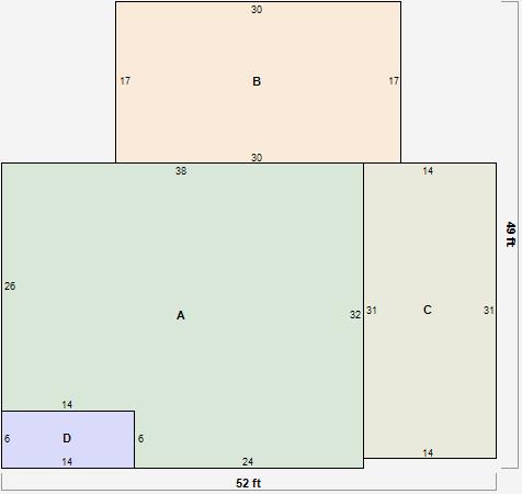
Parcel Sketches
Residential Card 1
A
MAIN
1132 square feet
B
1S FR ONE STORY FRAME
510 square feet
C
FR GR FRAME GARAGE
434 square feet
D
1S FR ONE STORY FRAME
84 square feet
Parcel Images