Elected Officials
Courts
Departments
Initiatives
Open Government
About
Login / Register
Home
/
Property & Tax Records
/
Property Records
/
Property & Tax Search
/
Parcel Profile
/
Print View
Search for Another Parcel
Parcel Profile
Historical Card
Sketches
Photos
Tax Map
Taxes
Print View
Print This Page
Address: 51 VINE LOTS 55.5 X 100.65
Parcel: 36005030001000
Parcel Profile
Address
51 | VINE LOTS 55.5 X 100.65
Street Status
PAVED | SIDEWALK
School District
NORTH EAST SCHOOL
Acreage
0.1282
Classification
R
Land Use Code
TWO FAMILY
Legal Description
51 VINE LOTS 55.5 X 100.65
Square Feet
2402
Topo
LEVEL
Utility
ALL PUBLIC
Zoning
Please contact your municipal zoning officer
Deed Book
0511
Deed Page
1379
2026 Tax Values
Land Value / Taxable
18,900 / 18,900.00
Building Value / Taxable
55,130 / 55,130.00
Total Value / Taxable
74,030 / 74,030.00
Clean & Green
Inactive
Homestead Status
Inactive
Farmstead Status
Inactive
Lerta Amount
0
Lerta Expiration Year
0
Residential Data
Card 1
Style
OLD STYLE
Basement
PART
Year Built
1900
Exterior Wall
ALUMINUM/VINYL
Total Living Area
2402
Full Baths
2
Half Baths
0
Fuel Type
GAS
Heating
CENTRAL
Heating System
FORCED AIR
Stories
2.0
Total Bedrooms
4
Total Family Rooms
1
Total Rooms
10
Fireplaces
0
Other Buildings & Yards
No OBY Data Found
Sales History
Sale Date
Type
Price
Book / Page
Other Info
7/30/1997
LAND & BUILDING
40000
0511 / 1379
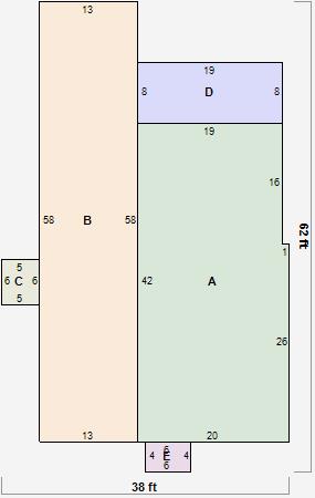
Parcel Sketches
Residential Card 1
A
MAIN
824 square feet
B
UNFIN BSMT BASEMENT UNFINISHED 1S FR ONE STORY FRAME
754 square feet
C
OFP OPEN FRAME PORCH
30 square feet
D
EFP ENCL FRAME PORCH
152 square feet
E
OFP OPEN FRAME PORCH
24 square feet
Parcel Images
Please note:
this tab is for informational purposes only and may not show all delinquencies, see the Taxes tab for more accurate delinquent taxes due.