Elected Officials
Courts
Departments
Initiatives
Open Government
About
Login / Register
Home
/
Property & Tax Records
/
Property Records
/
Property & Tax Search
/
Parcel Profile
/
Print View
Search for Another Parcel
Parcel Profile
Historical Card
Sketches
Photos
Tax Map
Taxes
Print View
Print This Page
Address: 14 GRANT ST
Parcel: 36005030001300
Parcel Profile
Address
14 | GRANT | ST
Street Status
PAVED | SIDEWALK
School District
NORTH EAST SCHOOL
Acreage
0.2181
Classification
R
Land Use Code
SINGLE FAMILY
Legal Description
14 GRANT ST 91X154.33
Square Feet
1639
Topo
LEVEL
Utility
ALL PUBLIC
Zoning
Please contact your municipal zoning officer
Deed Book
0229
Deed Page
0492
2026 Tax Values
Land Value / Taxable
21,200 / 21,200.00
Building Value / Taxable
43,300 / 43,300.00
Total Value / Taxable
64,500 / 64,500.00
Clean & Green
Inactive
Homestead Status
Active
Farmstead Status
Inactive
Lerta Amount
0
Lerta Expiration Year
0
Residential Data
Card 1
Style
BUNGALOW
Basement
FULL
Year Built
1910
Exterior Wall
FRAME
Total Living Area
1639
Full Baths
1
Half Baths
0
Fuel Type
GAS
Heating
CENTRAL
Heating System
HOT WATER
Stories
1.0
Total Bedrooms
3
Total Family Rooms
0
Total Rooms
7
Fireplaces
1
Other Buildings & Yards
Description
Built
Width
Length
Area
FRAME OR CB DETACHED GARAGE
1910
20
22
440
Sales History
Sale Date
Type
Price
Book / Page
Other Info
9/4/1992
0
0229 / 0492
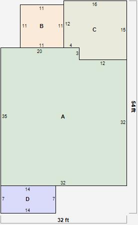
Parcel Sketches
Residential Card 1
A
MAIN
1084 square feet
B
1S FR ONE STORY FRAME
121 square feet
C
EFP ENCL FRAME PORCH
228 square feet
D
MA_PT CONC/MAS PATIO
98 square feet
Parcel Images