Elected Officials
Courts
Departments
Initiatives
Open Government
About
Login / Register
Home
/
Property & Tax Records
/
Property Records
/
Property & Tax Search
/
Parcel Profile
/
Print View
Search for Another Parcel
Parcel Profile
Historical Card
Sketches
Photos
Tax Map
Taxes
Print View
Print This Page
Address: 35 37 VINE
Parcel: 36005031000800
Parcel Profile
Address
35 | 37 | VINE
Street Status
PAVED | SIDEWALK
School District
NORTH EAST SCHOOL
Acreage
0.1850
Classification
C
Land Use Code
RESTAURANTS, STORES (RETAIL)
Legal Description
35 37 VINE 68.5 X 109.25 IRR
Square Feet
5621
Topo
LEVEL
Utility
ALL PUBLIC
Zoning
Please contact your municipal zoning officer
Deed Book
2023
Deed Page
008236
2026 Tax Values
Land Value / Taxable
16,100 / 16,100.00
Building Value / Taxable
82,400 / 82,400.00
Total Value / Taxable
98,500 / 98,500.00
Clean & Green
Inactive
Homestead Status
Inactive
Farmstead Status
Inactive
Lerta Amount
0
Lerta Expiration Year
0
Commercial Data
Card 1
RESTAURANT
Business Living Area - 5621
Year Built - 1900
Improvement Name - JOHNNY B'S RESTAURANT
Value - 91140
Other Buildings & Yards
No OBY Data Found
Sales History
Sale Date
Type
Price
Book / Page
Other Info
5/30/2023
LAND & BUILDING
145000
2023 / 008236
SPECIAL WARRANTY DEED
10/30/1995
LAND & BUILDING
50000
0410 / 1715
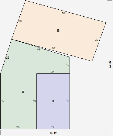
Parcel Sketches
Commercial Card 1
A
MAIN
1917 square feet
B
MAIN
1784 square feet
C
MAIN
960 square feet
D
MAIN
960 square feet
Parcel Images
Please note:
this tab is for informational purposes only and may not show all delinquencies, see the Taxes tab for more accurate delinquent taxes due.