Elected Officials
Courts
Departments
Initiatives
Open Government
About
Login / Register
Home
/
Property & Tax Records
/
Property Records
/
Property & Tax Search
/
Parcel Profile
/
Print View
Search for Another Parcel
Parcel Profile
Historical Card
Sketches
Photos
Tax Map
Taxes
Print View
Print This Page
Address: 11 S WASHINGTON ST
Parcel: 36005034000800
Parcel Profile
Address
11 | S | WASHINGTON | ST
Street Status
PAVED | SIDEWALK
School District
NORTH EAST SCHOOL
Acreage
0.1203
Classification
R
Land Use Code
SINGLE FAMILY
Legal Description
11 S WASHINGTON ST 121.22 X 62.66 IRR | 0.1203 AC NET
Square Feet
1440
Topo
LEVEL
Utility
ALL PUBLIC
Zoning
Please contact your municipal zoning officer
Deed Book
2017
Deed Page
009529
2026 Tax Values
Land Value / Taxable
18,400 / 18,400.00
Building Value / Taxable
42,500 / 42,500.00
Total Value / Taxable
60,900 / 60,900.00
Clean & Green
Inactive
Homestead Status
Active
Farmstead Status
Inactive
Lerta Amount
0
Lerta Expiration Year
0
Residential Data
Card 1
Style
OLD STYLE
Basement
PART
Year Built
1900
Exterior Wall
ALUMINUM/VINYL
Total Living Area
1440
Full Baths
1
Half Baths
1
Fuel Type
GAS
Heating
CENTRAL
Heating System
FORCED AIR
Stories
2.0
Total Bedrooms
3
Total Family Rooms
0
Total Rooms
6
Fireplaces
0
Other Buildings & Yards
No OBY Data Found
Sales History
Sale Date
Type
Price
Book / Page
Other Info
5/10/2017
LAND & BUILDING
0
2017 / 009529
SPECIAL WARRANTY DEED
12/20/2001
LAND & BUILDING
0
0837 / 0062
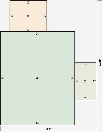
Parcel Sketches
Residential Card 1
A
MAIN
720 square feet
B
EFP ENCL FRAME PORCH
120 square feet
C
EFP ENCL FRAME PORCH
84 square feet
Parcel Images