Elected Officials
Courts
Departments
Initiatives
Open Government
About
Login / Register
Home
/
Property & Tax Records
/
Property Records
/
Property & Tax Search
/
Parcel Profile
/
Print View
Search for Another Parcel
Parcel Profile
Historical Card
Sketches
Photos
Tax Map
Taxes
Print View
Print This Page
Address: 59 EAST ST
Parcel: 36005037000500
Parcel Profile
Address
59 | EAST | ST
Street Status
PAVED | SIDEWALK
School District
NORTH EAST SCHOOL
Acreage
0.2066
Classification
R
Land Use Code
SINGLE FAMILY
Legal Description
59 EAST ST 58.06 X 155
Square Feet
2252
Topo
LEVEL
Utility
ALL PUBLIC
Zoning
Please contact your municipal zoning officer
Deed Book
1128
Deed Page
0155
2026 Tax Values
Land Value / Taxable
21,100 / 21,100.00
Building Value / Taxable
87,900 / 87,900.00
Total Value / Taxable
109,000 / 109,000.00
Clean & Green
Inactive
Homestead Status
Inactive
Farmstead Status
Inactive
Lerta Amount
0
Lerta Expiration Year
0
Residential Data
Card 1
Style
CONVENTIONAL
Basement
PART
Year Built
1920
Exterior Wall
ALUMINUM/VINYL
Total Living Area
2252
Full Baths
1
Half Baths
1
Fuel Type
GAS
Heating
CENTRAL
Heating System
HOT WATER
Stories
2.0
Total Bedrooms
3
Total Family Rooms
0
Total Rooms
2
Fireplaces
1
Other Buildings & Yards
Description
Built
Width
Length
Area
FLAT BARN
1900
12
18
216
Sales History
Sale Date
Type
Price
Book / Page
Other Info
9/12/1974
0
1128 / 0155
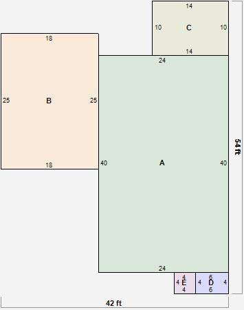
Parcel Sketches
Residential Card 1
A
MAIN
960 square feet
B
FR GR FRAME GARAGE
450 square feet
C
1S FR ONE STORY FRAME EFP ENCL FRAME PORCH
140 square feet
D
EFP ENCL FRAME PORCH
24 square feet
E
MA STOOP/TERR MAS STOOP
16 square feet
Parcel Images
Please note:
this tab is for informational purposes only and may not show all delinquencies, see the Taxes tab for more accurate delinquent taxes due.