Elected Officials
Courts
Departments
Initiatives
Open Government
About
Login / Register
Home
/
Property & Tax Records
/
Property Records
/
Property & Tax Search
/
Parcel Profile
/
Print View
Search for Another Parcel
Parcel Profile
Historical Card
Sketches
Photos
Tax Map
Taxes
Print View
Print This Page
Address: 56 CLAY ST
Parcel: 36005040001100
Parcel Profile
Address
56 | CLAY | ST
Street Status
PAVED | SIDEWALK
School District
NORTH EAST SCHOOL
Acreage
0.2713
Classification
R
Land Use Code
TWO FAMILY
Legal Description
56 CLAY ST 88.5 X 77.5 IRR
Square Feet
2558
Topo
LEVEL
Utility
ALL PUBLIC
Zoning
Please contact your municipal zoning officer
Deed Book
2023
Deed Page
004270
2026 Tax Values
Land Value / Taxable
21,900 / 21,900.00
Building Value / Taxable
52,620 / 52,620.00
Total Value / Taxable
74,520 / 74,520.00
Clean & Green
Inactive
Homestead Status
Active
Farmstead Status
Inactive
Lerta Amount
0
Lerta Expiration Year
0
Residential Data
Card 1
Style
OLD STYLE
Basement
FULL
Year Built
1900
Exterior Wall
ALUMINUM/VINYL
Total Living Area
2558
Full Baths
2
Half Baths
0
Fuel Type
GAS
Heating
CENTRAL
Heating System
HOT WATER
Stories
2.0
Total Bedrooms
4
Total Family Rooms
0
Total Rooms
8
Fireplaces
0
Other Buildings & Yards
Description
Built
Width
Length
Area
METAL SHED
2014
22
25
550
Sales History
Sale Date
Type
Price
Book / Page
Other Info
3/21/2023
LAND & BUILDING
120000
2023 / 004270
FIDUCIARY DEED
6/20/2003
LAND & BUILDING
57000
1025 / 2068
DEED
12/21/1998
0
0607 / 1249
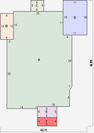
Parcel Sketches
Residential Card 1
A
MAIN
1243 square feet
B
1S FR ONE STORY FRAME
72 square feet
C
OFP OPEN FRAME PORCH
30 square feet
D
OFP OPEN FRAME PORCH
176 square feet
E
OFP OPEN FRAME PORCH OFP OPEN FRAME PORCH
45 square feet
F
OFP OPEN FRAME PORCH
36 square feet
Parcel Images