Elected Officials
Courts
Departments
Initiatives
Open Government
About
Login / Register
Home
/
Property & Tax Records
/
Property Records
/
Property & Tax Search
/
Parcel Profile
/
Print View
Search for Another Parcel
Parcel Profile
Historical Card
Sketches
Photos
Tax Map
Taxes
Print View
Print This Page
Address: 59 VINE ST
Parcel: 36005042000400
Parcel Profile
Address
59 | VINE | ST
Street Status
PAVED | SIDEWALK
School District
NORTH EAST SCHOOL
Acreage
0.1174
Classification
R
Land Use Code
SINGLE FAMILY
Legal Description
59 VINE ST 82.5X82
Square Feet
1324
Topo
LEVEL
Utility
ALL PUBLIC
Zoning
Please contact your municipal zoning officer
Deed Book
1382
Deed Page
1099
2026 Tax Values
Land Value / Taxable
18,500 / 18,500.00
Building Value / Taxable
47,600 / 47,600.00
Total Value / Taxable
66,100 / 66,100.00
Clean & Green
Inactive
Homestead Status
Active
Farmstead Status
Inactive
Lerta Amount
0
Lerta Expiration Year
0
Residential Data
Card 1
Style
BUNGALOW
Basement
FULL
Year Built
1910
Exterior Wall
FRAME
Total Living Area
1324
Full Baths
1
Half Baths
0
Fuel Type
GAS
Heating
CENTRAL
Heating System
FORCED AIR
Stories
1.0
Total Bedrooms
2
Total Family Rooms
0
Total Rooms
6
Fireplaces
0
Other Buildings & Yards
Description
Built
Width
Length
Area
FRAME OR CB DETACHED GARAGE
1920
20
22
440
Sales History
Sale Date
Type
Price
Book / Page
Other Info
12/13/2006
LAND & BUILDING
89900
1382 / 1099
WARRANTY/SURVIVORSHIP DEED
4/1/1997
LAND & BUILDING
34000
491 / 1852
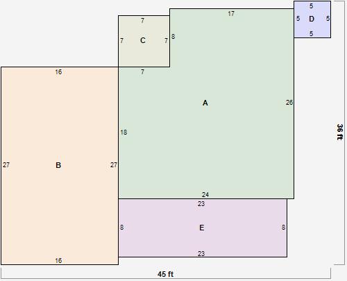
Parcel Sketches
Residential Card 1
A
MAIN
568 square feet
B
UNFIN BSMT BASEMENT UNFINISHED 1S FR ONE STORY FRAME 1/2FR FRAME HALF-STORY
432 square feet
C
EFP ENCL FRAME PORCH
49 square feet
D
WDDCK WOOD DECKS
25 square feet
E
OFP OPEN FRAME PORCH
184 square feet
Parcel Images
Please note:
this tab is for informational purposes only and may not show all delinquencies, see the Taxes tab for more accurate delinquent taxes due.