Elected Officials
Courts
Departments
Initiatives
Open Government
About
Login / Register
Home
/
Property & Tax Records
/
Property Records
/
Property & Tax Search
/
Parcel Profile
/
Print View
Search for Another Parcel
Parcel Profile
Historical Card
Sketches
Photos
Tax Map
Taxes
Print View
Print This Page
Address: 32 CLAY ST
Parcel: 36005042001300
Parcel Profile
Address
32 | CLAY | ST
Street Status
PAVED | SIDEWALK
School District
NORTH EAST SCHOOL
Acreage
0.1326
Classification
R
Land Use Code
SINGLE FAMILY
Legal Description
32 CLAY ST 54 X 88.72 IRR
Square Feet
1460
Topo
LEVEL
Utility
ALL PUBLIC
Zoning
Please contact your municipal zoning officer
Deed Book
2018
Deed Page
003113
2026 Tax Values
Land Value / Taxable
19,100 / 19,100.00
Building Value / Taxable
55,000 / 55,000.00
Total Value / Taxable
74,100 / 74,100.00
Clean & Green
Inactive
Homestead Status
Inactive
Farmstead Status
Inactive
Lerta Amount
0
Lerta Expiration Year
0
Residential Data
Card 1
Style
CONVENTIONAL
Basement
FULL
Year Built
1900
Exterior Wall
ALUMINUM/VINYL
Total Living Area
1460
Full Baths
1
Half Baths
0
Fuel Type
GAS
Heating
CENTRAL
Heating System
FORCED AIR
Stories
2.0
Total Bedrooms
3
Total Family Rooms
0
Total Rooms
5
Fireplaces
0
Other Buildings & Yards
Description
Built
Width
Length
Area
FRAME OR CB DETACHED GARAGE
1900
18
20
360
Sales History
Sale Date
Type
Price
Book / Page
Other Info
2/15/2018
LAND & BUILDING
0
2018 / 003113
SPECIAL WARRANTY DEED
10/19/2012
LAND & BUILDING
20000
2012 / 028846
DEED
4/10/2012
LAND & BUILDING
0
2012 / 008837
SHERIFF'S DED
10/20/1999
LAND & BUILDING
69500
669 / 427
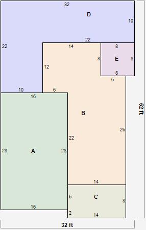
Parcel Sketches
Residential Card 1
A
MAIN
448 square feet
B
UNFIN BSMT BASEMENT UNFINISHED 1S FR ONE STORY FRAME
500 square feet
C
OFP OPEN FRAME PORCH
112 square feet
D
WDDCK WOOD DECKS
440 square feet
E
1S FR ONE STORY FRAME
64 square feet
Parcel Images
Please note:
this tab is for informational purposes only and may not show all delinquencies, see the Taxes tab for more accurate delinquent taxes due.