Elected Officials
Courts
Departments
Initiatives
Open Government
About
Login / Register
Home
/
Property & Tax Records
/
Property Records
/
Property & Tax Search
/
Parcel Profile
/
Print View
Search for Another Parcel
Parcel Profile
Historical Card
Sketches
Photos
Tax Map
Taxes
Print View
Print This Page
Address: 80 S LAKE ST
Parcel: 36005043001800
Parcel Profile
Address
80 | S | LAKE | ST
Street Status
PAVED | SIDEWALK
School District
NORTH EAST SCHOOL
Acreage
0.3066
Classification
R
Land Use Code
TWO FAMILY
Legal Description
80 S LAKE ST 68.5 X 198.5 IRR
Square Feet
2692
Topo
LEVEL
Utility
ALL PUBLIC
Zoning
Please contact your municipal zoning officer
Deed Book
2023
Deed Page
007113
2026 Tax Values
Land Value / Taxable
22,400 / 22,400.00
Building Value / Taxable
101,200 / 101,200.00
Total Value / Taxable
123,600 / 123,600.00
Clean & Green
Inactive
Homestead Status
Active
Farmstead Status
Inactive
Lerta Amount
0
Lerta Expiration Year
0
Residential Data
Card 1
Style
RANCH
Basement
FULL
Year Built
1900
Exterior Wall
BRICK
Total Living Area
1783
Full Baths
1
Half Baths
0
Fuel Type
GAS
Heating
CENTRAL A/C
Heating System
FORCED AIR
Stories
1.0
Total Bedrooms
2
Total Family Rooms
0
Total Rooms
5
Fireplaces
0
Card 2
Style
BUNGALOW
Basement
FULL
Year Built
1900
Exterior Wall
FRAME
Total Living Area
909
Full Baths
1
Half Baths
0
Fuel Type
GAS
Heating
CENTRAL
Heating System
FORCED AIR
Stories
1.0
Total Bedrooms
2
Total Family Rooms
0
Total Rooms
5
Fireplaces
0
Other Buildings & Yards
Description
Built
Width
Length
Area
FRAME OR CB DETACHED GARAGE
1900
22
26
572
FRAME OR CB DETACHED GARAGE
1900
11
22
242
Sales History
Sale Date
Type
Price
Book / Page
Other Info
5/8/2023
LAND & BUILDING
190000
2023 / 007113
SPECIAL WARRANTY DEED
4/10/2023
LAND & BUILDING
0
2023 / 005361
FIDUCIARY DEED
5/19/2005
LAND & BUILDING
0
1235 / 0332
WARRANTY/SURVIVORSHIP DEED
12/30/1997
LAND & BUILDING
80000
536 / 938
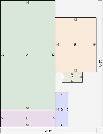
Parcel Sketches
Residential Card 1
A
MAIN
996 square feet
B
UNFIN BSMT BASEMENT UNFINISHED 1S FR ONE STORY FRAME AT FN ATTIC-FINISHED
520 square feet
C
1S FR ONE STORY FRAME
59 square feet
D
OFP OPEN FRAME PORCH
24 square feet
E
CANPY CANOPY
30 square feet
F
OFP OPEN FRAME PORCH
45 square feet
G
OFP OPEN FRAME PORCH
198 square feet
Residential Card 2
A
MAIN
512 square feet
B
1S FR ONE STORY FRAME
192 square feet
C
MA STOOP/TERR MAS STOOP
18 square feet
D
MA_PT CONC/MAS PATIO CANPY CANOPY
40 square feet
E
EFP ENCL FRAME PORCH
80 square feet
Parcel Images
Please note:
this tab is for informational purposes only and may not show all delinquencies, see the Taxes tab for more accurate delinquent taxes due.