Elected Officials
Courts
Departments
Initiatives
Open Government
About
Login / Register
Home
/
Property & Tax Records
/
Property Records
/
Property & Tax Search
/
Parcel Profile
/
Print View
Search for Another Parcel
Parcel Profile
Historical Card
Sketches
Photos
Tax Map
Taxes
Print View
Print This Page
Address: 76 S LAKE ST
Parcel: 36005043002000
Parcel Profile
Address
76 | S | LAKE | ST
Street Status
PAVED | SIDEWALK
School District
NORTH EAST SCHOOL
Acreage
0.1989
Classification
R
Land Use Code
SINGLE FAMILY
Legal Description
76 S LAKE ST 52.5 X 165
Square Feet
2785
Topo
LEVEL
Utility
ALL PUBLIC
Zoning
Please contact your municipal zoning officer
Deed Book
0091
Deed Page
0967
2026 Tax Values
Land Value / Taxable
21,000 / 21,000.00
Building Value / Taxable
93,100 / 93,100.00
Total Value / Taxable
114,100 / 114,100.00
Clean & Green
Inactive
Homestead Status
Active
Farmstead Status
Inactive
Lerta Amount
0
Lerta Expiration Year
0
Residential Data
Card 1
Style
OLD STYLE
Basement
FULL
Year Built
1900
Exterior Wall
ALUMINUM/VINYL
Total Living Area
2785
Full Baths
2
Half Baths
0
Fuel Type
GAS
Heating
CENTRAL
Heating System
FORCED AIR
Stories
2.0
Total Bedrooms
3
Total Family Rooms
0
Total Rooms
9
Fireplaces
0
Other Buildings & Yards
Description
Built
Width
Length
Area
FLAT BARN
1900
24
36
864
Sales History
Sale Date
Type
Price
Book / Page
Other Info
7/3/1989
0
0091 / 0967
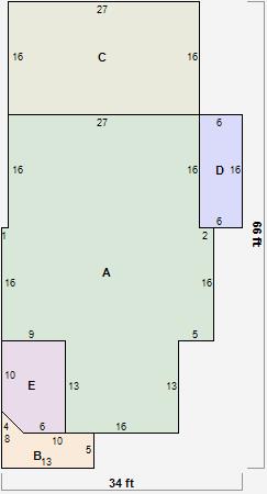
Parcel Sketches
Residential Card 1
A
MAIN
1120 square feet
B
OFP OPEN FRAME PORCH
70 square feet
C
1S FR ONE STORY FRAME
432 square feet
D
OFP OPEN FRAME PORCH
96 square feet
E
1S FR ONE STORY FRAME
113 square feet
Parcel Images
Please note:
this tab is for informational purposes only and may not show all delinquencies, see the Taxes tab for more accurate delinquent taxes due.