Elected Officials
Courts
Departments
Initiatives
Open Government
About
Login / Register
Home
/
Property & Tax Records
/
Property Records
/
Property & Tax Search
/
Parcel Profile
/
Print View
Search for Another Parcel
Parcel Profile
Historical Card
Sketches
Photos
Tax Map
Taxes
Print View
Print This Page
Address: 65 WELLINGTON ST
Parcel: 36009058001600
Parcel Profile
Address
65 | WELLINGTON | ST
Street Status
PAVED
School District
NORTH EAST SCHOOL
Acreage
0.5165
Classification
R
Land Use Code
SINGLE FAMILY
Legal Description
65 WELLINGTON ST 143.2 X 235 IRR | SEE PCL 37-23-91-8 FOR REST OF PCL
Square Feet
1981
Topo
LEVEL
Utility
ALL PUBLIC
Zoning
Please contact your municipal zoning officer
Deed Book
1556
Deed Page
0030
2026 Tax Values
Land Value / Taxable
25,100 / 25,100.00
Building Value / Taxable
50,700 / 50,700.00
Total Value / Taxable
75,800 / 75,800.00
Clean & Green
Inactive
Homestead Status
Active
Farmstead Status
Inactive
Lerta Amount
0
Lerta Expiration Year
0
Residential Data
Card 1
Style
CONVENTIONAL
Basement
PART
Year Built
1925
Exterior Wall
FRAME
Total Living Area
1981
Full Baths
1
Half Baths
0
Fuel Type
GAS
Heating
CENTRAL
Heating System
HOT WATER
Stories
1.5
Total Bedrooms
4
Total Family Rooms
0
Total Rooms
7
Fireplaces
0
Other Buildings & Yards
Description
Built
Width
Length
Area
FRAME UTILITY SHED
1925
15
21
315
Sales History
Sale Date
Type
Price
Book / Page
Other Info
4/17/2009
LAND & BUILDING
60000
1556 / 0030
WARRANTY/SURVIVORSHIP DEED
3/31/2004
LAND & BUILDING
0
1119 / 2356
WARRANTY/SURVIVORSHIP DEED
8/5/1999
0
0654 / 0213
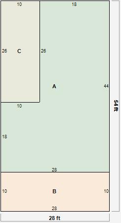
Parcel Sketches
Residential Card 1
A
MAIN
972 square feet
B
1S FR ONE STORY FRAME
280 square feet
C
EFP ENCL FRAME PORCH
260 square feet
Parcel Images
Please note:
this tab is for informational purposes only and may not show all delinquencies, see the Taxes tab for more accurate delinquent taxes due.