Elected Officials
Courts
Departments
Initiatives
Open Government
About
Login / Register
Home
/
Property & Tax Records
/
Property Records
/
Property & Tax Search
/
Parcel Profile
/
Print View
Search for Another Parcel
Parcel Profile
Historical Card
Sketches
Photos
Tax Map
Taxes
Print View
Print This Page
Address: 32 WELLINGTON ST
Parcel: 36009059004000
Parcel Profile
Address
32 | WELLINGTON | ST
Street Status
PAVED
School District
NORTH EAST SCHOOL
Acreage
0.6092
Classification
R
Land Use Code
SINGLE FAMILY
Legal Description
32 WELLINGTON 57.5X201.65 IR
Square Feet
1704
Topo
LEVEL
Utility
ALL PUBLIC
Zoning
Please contact your municipal zoning officer
Deed Book
2022
Deed Page
021410
2025 Tax Values
Land Value / Taxable
26,300 / 26,300.00
Building Value / Taxable
64,100 / 64,100.00
Total Value / Taxable
90,400 / 90,400.00
Clean & Green
Inactive
Homestead Status
Active
Farmstead Status
Inactive
Lerta Amount
0
Lerta Expiration Year
0
Residential Data
Card 1
Style
OLD STYLE
Basement
FULL
Year Built
1942
Exterior Wall
COMPOSITION
Total Living Area
1704
Full Baths
2
Half Baths
0
Fuel Type
GAS
Heating
CENTRAL
Heating System
FORCED AIR
Stories
2.0
Total Bedrooms
5
Total Family Rooms
0
Total Rooms
9
Fireplaces
0
Other Buildings & Yards
Description
Built
Width
Length
Area
FRAME OR CB DETACHED GARAGE
1950
20
26
520
Sales History
Sale Date
Type
Price
Book / Page
Other Info
9/30/2022
LAND & BUILDING
210000
2022 / 021410
SPECIAL WARRANTY DEED
6/26/2012
LAND & BUILDING
0
2012 / 016789
QUIT CLAIM DEED
10/25/1995
LAND & BUILDING
63000
412 / 1499
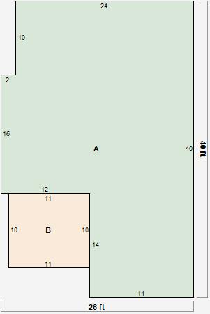
Parcel Sketches
Residential Card 1
A
MAIN
852 square feet
B
EFP ENCL FRAME PORCH
110 square feet
Parcel Images