Elected Officials
Courts
Departments
Initiatives
Open Government
About
Login / Register
Home
/
Property & Tax Records
/
Property Records
/
Property & Tax Search
/
Parcel Profile
/
Print View
Search for Another Parcel
Parcel Profile
Historical Card
Sketches
Photos
Tax Map
Taxes
Print View
Print This Page
Address: 61 CLAY ST
Parcel: 36010038000100
Parcel Profile
Address
61 | CLAY | ST
Street Status
PAVED
School District
NORTH EAST SCHOOL
Acreage
0.3288
Classification
R
Land Use Code
SINGLE FAMILY
Legal Description
61 CLAY ST 66X217
Square Feet
1668
Topo
LEVEL
Utility
ALL PUBLIC
Zoning
Please contact your municipal zoning officer
Deed Book
2017
Deed Page
002012
2026 Tax Values
Land Value / Taxable
22,700 / 22,700.00
Building Value / Taxable
50,360 / 50,360.00
Total Value / Taxable
73,060 / 73,060.00
Clean & Green
Inactive
Homestead Status
Active
Farmstead Status
Inactive
Lerta Amount
0
Lerta Expiration Year
0
Residential Data
Card 1
Style
OLD STYLE
Basement
PART
Year Built
1910
Exterior Wall
ALUMINUM/VINYL
Total Living Area
1668
Full Baths
2
Half Baths
0
Fuel Type
GAS
Heating
CENTRAL
Heating System
FORCED AIR
Stories
2.0
Total Bedrooms
3
Total Family Rooms
1
Total Rooms
7
Fireplaces
0
Other Buildings & Yards
Description
Built
Width
Length
Area
FRAME UTILITY SHED
1996
10
12
120
Sales History
Sale Date
Type
Price
Book / Page
Other Info
1/30/2017
LAND & BUILDING
0
2017 / 002012
QUIT CLAIM DEED
12/4/1979
0
1373 / 0124
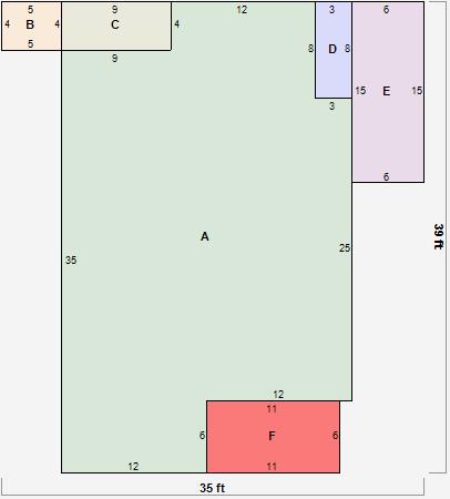
Parcel Sketches
Residential Card 1
A
MAIN
804 square feet
B
MA STOOP/TERR MAS STOOP
20 square feet
C
1S FR ONE STORY FRAME
36 square feet
D
1S FR ONE STORY FRAME
24 square feet
E
EFP ENCL FRAME PORCH
90 square feet
F
EFP ENCL FRAME PORCH
66 square feet
Parcel Images
Please note:
this tab is for informational purposes only and may not show all delinquencies, see the Taxes tab for more accurate delinquent taxes due.