Elected Officials
Courts
Departments
Initiatives
Open Government
About
Login / Register
Home
/
Property & Tax Records
/
Property Records
/
Property & Tax Search
/
Parcel Profile
/
Print View
Search for Another Parcel
Parcel Profile
Historical Card
Sketches
Photos
Tax Map
Taxes
Print View
Print This Page
Address: 29 BOTHEL ST
Parcel: 36010061000900
Parcel Profile
Address
29 | BOTHEL | ST
Street Status
PAVED | SIDEWALK
School District
NORTH EAST SCHOOL
Acreage
0.1864
Classification
R
Land Use Code
SINGLE FAMILY
Legal Description
29 BOTHEL ST 66 X 124.9
Square Feet
1384
Topo
LEVEL
Utility
ALL PUBLIC
Zoning
Please contact your municipal zoning officer
Deed Book
2024
Deed Page
012025
2026 Tax Values
Land Value / Taxable
18,700 / 18,700.00
Building Value / Taxable
58,600 / 58,600.00
Total Value / Taxable
77,300 / 77,300.00
Clean & Green
Inactive
Homestead Status
Inactive
Farmstead Status
Inactive
Lerta Amount
0
Lerta Expiration Year
0
Residential Data
Card 1
Style
OLD STYLE
Basement
PART
Year Built
1930
Exterior Wall
ALUMINUM/VINYL
Total Living Area
1384
Full Baths
1
Half Baths
1
Fuel Type
GAS
Heating
CENTRAL A/C
Heating System
FORCED AIR
Stories
2.0
Total Bedrooms
3
Total Family Rooms
0
Total Rooms
7
Fireplaces
0
Other Buildings & Yards
Description
Built
Width
Length
Area
FRAME OR CB DETACHED GARAGE
1974
24
24
576
Sales History
Sale Date
Type
Price
Book / Page
Other Info
8/2/2024
LAND & BUILDING
120000
2024 / 012025
SPECIAL WARRANTY DEED
8/27/2019
LAND & BUILDING
0
2019 / 016945
QUIT CLAIM DEED
10/11/1996
LAND & BUILDING
65000
466 / 1092
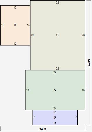
Parcel Sketches
Residential Card 1
A
MAIN
384 square feet
B
WDDCK WOOD DECKS
192 square feet
C
1S FR ONE STORY FRAME
616 square feet
D
OFP OPEN FRAME PORCH
108 square feet
Parcel Images
Please note:
this tab is for informational purposes only and may not show all delinquencies, see the Taxes tab for more accurate delinquent taxes due.