Elected Officials
Courts
Departments
Initiatives
Open Government
About
Login / Register
Home
/
Property & Tax Records
/
Property Records
/
Property & Tax Search
/
Parcel Profile
/
Print View
Search for Another Parcel
Parcel Profile
Historical Card
Sketches
Photos
Tax Map
Taxes
Print View
Print This Page
Address: 66 GRAHAMVILLE ST
Parcel: 36010061001400
Parcel Profile
Address
66 | GRAHAMVILLE | ST
Street Status
PAVED | SIDEWALK
School District
NORTH EAST SCHOOL
Acreage
0.2388
Classification
R
Land Use Code
TWO FAMILY
Legal Description
66 GRAHAMVILLE 66X155
Square Feet
1952
Topo
LEVEL
Utility
ALL PUBLIC
Zoning
Please contact your municipal zoning officer
Deed Book
2020
Deed Page
012927
2026 Tax Values
Land Value / Taxable
19,400 / 19,400.00
Building Value / Taxable
46,100 / 46,100.00
Total Value / Taxable
65,500 / 65,500.00
Clean & Green
Inactive
Homestead Status
Active
Farmstead Status
Inactive
Lerta Amount
0
Lerta Expiration Year
0
Residential Data
Card 1
Style
OLD STYLE
Basement
PART
Year Built
1930
Exterior Wall
ALUMINUM/VINYL
Total Living Area
1952
Full Baths
2
Half Baths
0
Fuel Type
GAS
Heating
CENTRAL
Heating System
FORCED AIR
Stories
2.0
Total Bedrooms
4
Total Family Rooms
0
Total Rooms
8
Fireplaces
0
Other Buildings & Yards
No OBY Data Found
Sales History
Sale Date
Type
Price
Book / Page
Other Info
7/13/2020
LAND & BUILDING
0
2020 / 012927
FIDUCIARY DEED
10/6/2016
LAND & BUILDING
68500
2016 / 021881
DEED
9/30/1969
0
1011 / 0207
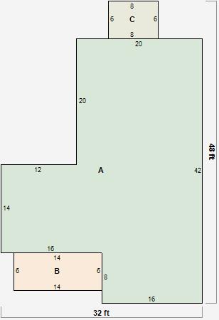
Parcel Sketches
Residential Card 1
A
MAIN
976 square feet
B
OFP OPEN FRAME PORCH
84 square feet
C
OFP OPEN FRAME PORCH OFP OPEN FRAME PORCH
48 square feet
Parcel Images
Please note:
this tab is for informational purposes only and may not show all delinquencies, see the Taxes tab for more accurate delinquent taxes due.