Elected Officials
Courts
Departments
Initiatives
Open Government
About
Login / Register
Home
/
Property & Tax Records
/
Property Records
/
Property & Tax Search
/
Parcel Profile
/
Print View
Search for Another Parcel
Parcel Profile
Historical Card
Sketches
Photos
Tax Map
Taxes
Print View
Print This Page
Address: 136 GRAHAMVILLE ST
Parcel: 36011065000800
Parcel Profile
Address
136 | GRAHAMVILLE | ST
Street Status
PAVED
School District
NORTH EAST SCHOOL
Acreage
0.2224
Classification
R
Land Use Code
SINGLE FAMILY
Legal Description
136 GRAHAMVILLE ST 56 X 173
Square Feet
1232
Topo
LEVEL
Utility
ALL PUBLIC
Zoning
Please contact your municipal zoning officer
Deed Book
2013
Deed Page
000679
2026 Tax Values
Land Value / Taxable
21,300 / 21,300.00
Building Value / Taxable
51,400 / 51,400.00
Total Value / Taxable
72,700 / 72,700.00
Clean & Green
Inactive
Homestead Status
Active
Farmstead Status
Inactive
Lerta Amount
0
Lerta Expiration Year
0
Residential Data
Card 1
Style
CONVENTIONAL
Basement
PART
Year Built
1901
Exterior Wall
ALUMINUM/VINYL
Total Living Area
1232
Full Baths
1
Half Baths
1
Fuel Type
GAS
Heating
CENTRAL
Heating System
FORCED AIR
Stories
2.0
Total Bedrooms
3
Total Family Rooms
0
Total Rooms
7
Fireplaces
0
Other Buildings & Yards
Description
Built
Width
Length
Area
FRAME OR CB DETACHED GARAGE
1950
18
18
324
Sales History
Sale Date
Type
Price
Book / Page
Other Info
1/9/2013
LAND & BUILDING
80000
2013 / 000679
DEED
12/9/2004
LAND & BUILDING
0
1195 / 2096
QUIT CLAIM DEED
9/27/1993
0
0293 / 1682
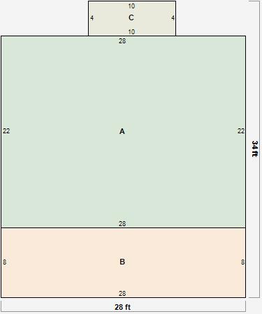
Parcel Sketches
Residential Card 1
A
MAIN
616 square feet
B
EFP ENCL FRAME PORCH
224 square feet
C
WDDCK WOOD DECKS
40 square feet
Parcel Images
Please note:
this tab is for informational purposes only and may not show all delinquencies, see the Taxes tab for more accurate delinquent taxes due.