Elected Officials
Courts
Departments
Initiatives
Open Government
About
Login / Register
Home
/
Property & Tax Records
/
Property Records
/
Property & Tax Search
/
Parcel Profile
/
Print View
Search for Another Parcel
Parcel Profile
Historical Card
Sketches
Photos
Tax Map
Taxes
Print View
Print This Page
Address: 10262 E LAKE RD
Parcel: 37002001003600
Parcel Profile
Address
10262 | E | LAKE | RD
Street Status
PAVED
School District
NORTH EAST SCHOOL
Acreage
0.8380
Classification
R
Land Use Code
SINGLE FAMILY
Legal Description
10262 E LAKE RD LOT 1 140 X 282.14 IRR | REF MB 2007-4
Square Feet
2041
Topo
LEVEL
Utility
WELL | SEPTIC
Zoning
Please contact your municipal zoning officer
Deed Book
2012
Deed Page
025155
2026 Tax Values
Land Value / Taxable
47,000 / 47,000.00
Building Value / Taxable
70,000 / 70,000.00
Total Value / Taxable
117,000 / 117,000.00
Clean & Green
Inactive
Homestead Status
Inactive
Farmstead Status
Inactive
Lerta Amount
0
Lerta Expiration Year
0
Residential Data
Card 1
Style
CONVENTIONAL
Basement
FULL
Year Built
1904
Exterior Wall
ALUMINUM/VINYL
Total Living Area
2041
Full Baths
2
Half Baths
0
Fuel Type
GAS
Heating
CENTRAL A/C
Heating System
FORCED AIR
Stories
2.0
Total Bedrooms
4
Total Family Rooms
0
Total Rooms
8
Fireplaces
0
Other Buildings & Yards
Description
Built
Width
Length
Area
FRAME UTILITY SHED
2013
10
20
200
Sales History
Sale Date
Type
Price
Book / Page
Other Info
9/13/2012
LAND & BUILDING
125000
2012 / 025155
DEED
9/5/2012
LAND & BUILDING
0
2012 / 024317
CORRECTIVE DEED
8/8/2011
LAND & BUILDING
93900
2011 / 018366
DEED
2/1/2011
LAND & BUILDING
0
2011 / 002772
DEED
9/16/1994
0
0354 / 0836
Parcel Sketches
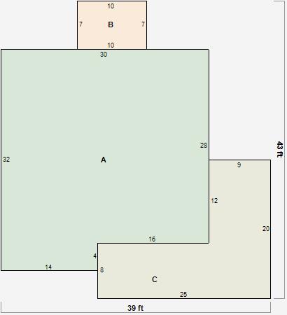
Residential Card 1
A
MAIN
896 square feet
B
EFP ENCL FRAME PORCH 1S FR ONE STORY FRAME
70 square feet
C
OFP OPEN FRAME PORCH
308 square feet
Parcel Images
Please note:
this tab is for informational purposes only and may not show all delinquencies, see the Taxes tab for more accurate delinquent taxes due.