Elected Officials
Courts
Departments
Initiatives
Open Government
About
Login / Register
Home
/
Property & Tax Records
/
Property Records
/
Property & Tax Search
/
Parcel Profile
/
Print View
Search for Another Parcel
Parcel Profile
Historical Card
Sketches
Photos
Tax Map
Taxes
Print View
Print This Page
Address: 10156 E LAKE RD
Parcel: 37002005000100
Parcel Profile
Address
10156 | E | LAKE | RD
Street Status
PAVED
School District
NORTH EAST SCHOOL
Acreage
0.4591
Classification
R
Land Use Code
SINGLE FAMILY
Legal Description
10156 E LAKE RD 50 X 200 IR
Square Feet
1542
Topo
LEVEL
Utility
GAS | WELL | SEPTIC
Zoning
Please contact your municipal zoning officer
Deed Book
2018
Deed Page
013781
2026 Tax Values
Land Value / Taxable
42,000 / 42,000.00
Building Value / Taxable
28,040 / 28,040.00
Total Value / Taxable
70,040 / 70,040.00
Clean & Green
Inactive
Homestead Status
Inactive
Farmstead Status
Inactive
Lerta Amount
0
Lerta Expiration Year
0
Residential Data
Card 1
Style
OLD STYLE
Basement
FULL
Year Built
1930
Exterior Wall
FRAME
Total Living Area
1542
Full Baths
1
Half Baths
0
Fuel Type
COAL/WOOD
Heating
NON CENTRAL
Heating System
NONE
Stories
1.5
Total Bedrooms
4
Total Family Rooms
0
Total Rooms
7
Fireplaces
1
Other Buildings & Yards
No OBY Data Found
Sales History
Sale Date
Type
Price
Book / Page
Other Info
7/11/2018
LAND & BUILDING
0
2018 / 013781
FIDUCIARY DEED
12/16/2004
LAND & BUILDING
0
1197 / 2050
QUIT CLAIM DEED
10/2/1996
0
0464 / 1034
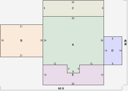
Parcel Sketches
Residential Card 1
A
MAIN
744 square feet
B
CARPT CARPORT
336 square feet
C
1S FR ONE STORY FRAME
240 square feet
D
EFP ENCL FRAME PORCH
126 square feet
E
OFP OPEN FRAME PORCH
276 square feet
Parcel Images
Please note:
this tab is for informational purposes only and may not show all delinquencies, see the Taxes tab for more accurate delinquent taxes due.