Elected Officials
Courts
Departments
Initiatives
Open Government
About
Login / Register
Home
/
Property & Tax Records
/
Property Records
/
Property & Tax Search
/
Parcel Profile
/
Print View
Search for Another Parcel
Parcel Profile
Historical Card
Sketches
Photos
Tax Map
Taxes
Print View
Print This Page
Address: 10662 E LAKE RD
Parcel: 37002006000700
Parcel Profile
Address
10662 | E | LAKE | RD
Street Status
PAVED
School District
NORTH EAST SCHOOL
Acreage
3.0000
Classification
R
Land Use Code
SINGLE FAMILY
Legal Description
10662 EAST LAKE RD 3.00 AC
Square Feet
2762
Topo
LEVEL
Utility
GAS | WELL | SEPTIC
Zoning
Please contact your municipal zoning officer
Deed Book
2013
Deed Page
020103
2026 Tax Values
Land Value / Taxable
174,100 / 174,100.00
Building Value / Taxable
184,200 / 184,200.00
Total Value / Taxable
358,300 / 358,300.00
Clean & Green
Inactive
Homestead Status
Inactive
Farmstead Status
Inactive
Lerta Amount
0
Lerta Expiration Year
0
Residential Data
Card 1
Style
CAPE
Basement
FULL
Year Built
1930
Exterior Wall
ALUMINUM/VINYL
Total Living Area
2762
Full Baths
3
Half Baths
0
Fuel Type
GAS
Heating
CENTRAL
Heating System
HOT WATER
Stories
1.0
Total Bedrooms
4
Total Family Rooms
1
Total Rooms
7
Fireplaces
2
Other Buildings & Yards
No OBY Data Found
Sales History
Sale Date
Type
Price
Book / Page
Other Info
8/1/2013
LAND & BUILDING
350000
2013 / 020103
DEED
3/12/2007
LAND & BUILDING
515000
1400 / 0562
DEED
6/20/2006
LAND & BUILDING
515000
1338 / 0067
WARRANTY/SURVIVORSHIP DEED
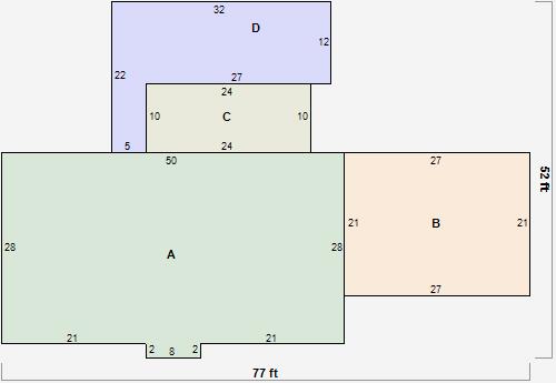
Parcel Sketches
Residential Card 1
A
MAIN
1416 square feet
B
1S FR ONE STORY FRAME
567 square feet
C
EFP ENCL FRAME PORCH
240 square feet
D
WDDCK WOOD DECKS
434 square feet
Parcel Images
Please note:
this tab is for informational purposes only and may not show all delinquencies, see the Taxes tab for more accurate delinquent taxes due.