Elected Officials
Courts
Departments
Initiatives
Open Government
About
Login / Register
Home
/
Property & Tax Records
/
Property Records
/
Property & Tax Search
/
Parcel Profile
/
Print View
Search for Another Parcel
Parcel Profile
Historical Card
Sketches
Photos
Tax Map
Taxes
Print View
Print This Page
Address: 11533 MIDDLE RD
Parcel: 37005045001300
Parcel Profile
Address
11533 | MIDDLE | RD
Street Status
PAVED
School District
NORTH EAST SCHOOL
Acreage
0.5266
Classification
R
Land Use Code
MULTIPLE DWELLINGS
Legal Description
11533 MIDDLE RD 154 X 150
Square Feet
4104
Topo
LEVEL
Utility
WELL | SEPTIC
Zoning
Please contact your municipal zoning officer
Deed Book
2017
Deed Page
015173
2026 Tax Values
Land Value / Taxable
36,300 / 36,300.00
Building Value / Taxable
84,480 / 84,480.00
Total Value / Taxable
120,780 / 120,780.00
Clean & Green
Inactive
Homestead Status
Inactive
Farmstead Status
Inactive
Lerta Amount
0
Lerta Expiration Year
0
Residential Data
Card 1
Style
OLD STYLE
Basement
FULL
Year Built
1910
Exterior Wall
FRAME
Total Living Area
1608
Full Baths
2
Half Baths
0
Fuel Type
OIL
Heating
CENTRAL
Heating System
FORCED AIR
Stories
2.0
Total Bedrooms
4
Total Family Rooms
0
Total Rooms
8
Fireplaces
0
Card 2
Style
OTHER
Basement
NONE
Year Built
1910
Exterior Wall
FRAME
Total Living Area
2496
Full Baths
4
Half Baths
0
Fuel Type
GAS
Heating
CENTRAL
Heating System
HOT WATER
Stories
2.0
Total Bedrooms
4
Total Family Rooms
0
Total Rooms
12
Fireplaces
0
Other Buildings & Yards
No OBY Data Found
Sales History
Sale Date
Type
Price
Book / Page
Other Info
7/18/2017
LAND & BUILDING
0
2017 / 015173
QUIT/CLAIM SURVIVORSHIP
2/23/2011
LAND & BUILDING
0
2011 / 004491
WARRANTY/SURVIVORSHIP DEED
4/7/1982
0
1452 / 0171
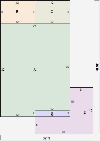
Parcel Sketches
Residential Card 1
A
MAIN
744 square feet
B
EFP ENCL FRAME PORCH
96 square feet
C
1S FR ONE STORY FRAME
96 square feet
D
OFP OPEN FRAME PORCH 1S FR ONE STORY FRAME
24 square feet
E
OFP OPEN FRAME PORCH
200 square feet
Residential Card 2
A
MAIN
864 square feet
B
1S FR ONE STORY FRAME
288 square feet
C
BASEMENT - FBLA 1S FR ONE STORY FRAME
224 square feet
D
FROVR FRAME OVERHANG
32 square feet
Parcel Images
Please note:
this tab is for informational purposes only and may not show all delinquencies, see the Taxes tab for more accurate delinquent taxes due.