Elected Officials
Courts
Departments
Initiatives
Open Government
About
Login / Register
Home
/
Property & Tax Records
/
Property Records
/
Property & Tax Search
/
Parcel Profile
/
Print View
Search for Another Parcel
Parcel Profile
Historical Card
Sketches
Photos
Tax Map
Taxes
Print View
Print This Page
Address: 11151 MIDDLE RD
Parcel: 37005046000200
Parcel Profile
Address
11151 | MIDDLE | RD
Street Status
PAVED
School District
NORTH EAST SCHOOL
Acreage
1.0000
Classification
R
Land Use Code
SINGLE FAMILY
Legal Description
11151 MIDDLE RD 1 AC
Square Feet
1124
Topo
LEVEL
Utility
PUBLIC WATER | GAS | SEPTIC
Zoning
Please contact your municipal zoning officer
Deed Book
2016
Deed Page
014779
2026 Tax Values
Land Value / Taxable
40,300 / 40,300.00
Building Value / Taxable
53,000 / 53,000.00
Total Value / Taxable
93,300 / 93,300.00
Clean & Green
Inactive
Homestead Status
Inactive
Farmstead Status
Inactive
Lerta Amount
0
Lerta Expiration Year
0
Residential Data
Card 1
Style
CAPE
Basement
FULL
Year Built
1938
Exterior Wall
ALUMINUM/VINYL
Total Living Area
1124
Full Baths
1
Half Baths
0
Fuel Type
GAS
Heating
CENTRAL
Heating System
FORCED AIR
Stories
1.0
Total Bedrooms
4
Total Family Rooms
0
Total Rooms
7
Fireplaces
0
Other Buildings & Yards
Description
Built
Width
Length
Area
FRAME OR CB DETACHED GARAGE
1938
24
30
720
FRAME UTILITY SHED
1938
12
24
288
Sales History
Sale Date
Type
Price
Book / Page
Other Info
7/14/2016
LAND & BUILDING
153000
2016 / 014779
WARRANTY/SURVIVORSHIP DEED
1/1/1961
0
0834 / 0036
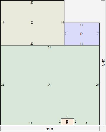
Parcel Sketches
Residential Card 1
A
MAIN
767 square feet
B
OFP OPEN FRAME PORCH
8 square feet
C
1S FR ONE STORY FRAME
280 square feet
D
UNFIN BSMT BASEMENT UNFINISHED 1S FR ONE STORY FRAME
77 square feet
Parcel Images
Please note:
this tab is for informational purposes only and may not show all delinquencies, see the Taxes tab for more accurate delinquent taxes due.