Elected Officials
Courts
Departments
Initiatives
Open Government
About
Login / Register
Home
/
Property & Tax Records
/
Property Records
/
Property & Tax Search
/
Parcel Profile
/
Print View
Search for Another Parcel
Parcel Profile
Historical Card
Sketches
Photos
Tax Map
Taxes
Print View
Print This Page
Address: 2045 FREEPORT RD
Parcel: 37005046002000
Parcel Profile
Address
2045 | FREEPORT | RD
Street Status
PAVED | SIDEWALK
School District
NORTH EAST SCHOOL
Acreage
0.1907
Classification
R
Land Use Code
SINGLE FAMILY
Legal Description
2045 FREEPORT RD 62 X 195 IRR
Square Feet
1536
Topo
LEVEL
Utility
ALL PUBLIC
Zoning
Please contact your municipal zoning officer
Deed Book
0607
Deed Page
1257
2026 Tax Values
Land Value / Taxable
28,100 / 28,100.00
Building Value / Taxable
48,800 / 48,800.00
Total Value / Taxable
76,900 / 76,900.00
Clean & Green
Inactive
Homestead Status
Active
Farmstead Status
Inactive
Lerta Amount
0
Lerta Expiration Year
0
Residential Data
Card 1
Style
OLD STYLE
Basement
FULL
Year Built
1910
Exterior Wall
COMPOSITION
Total Living Area
1536
Full Baths
1
Half Baths
0
Fuel Type
GAS
Heating
CENTRAL
Heating System
FORCED AIR
Stories
2.0
Total Bedrooms
4
Total Family Rooms
0
Total Rooms
8
Fireplaces
0
Other Buildings & Yards
No OBY Data Found
Sales History
Sale Date
Type
Price
Book / Page
Other Info
12/21/1998
0
0607 / 1257
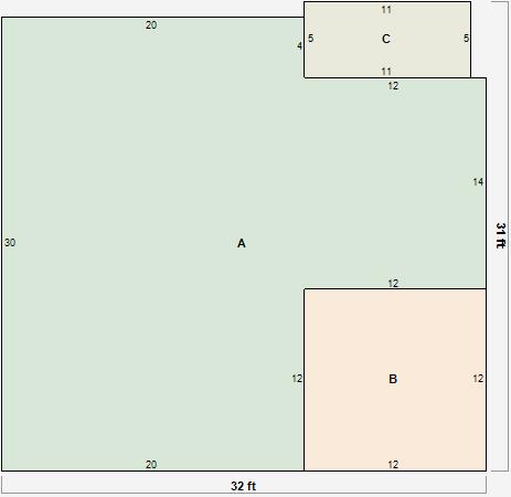
Parcel Sketches
Residential Card 1
A
MAIN
768 square feet
B
EFP ENCL FRAME PORCH
144 square feet
C
EFP ENCL FRAME PORCH
55 square feet
Parcel Images
Please note:
this tab is for informational purposes only and may not show all delinquencies, see the Taxes tab for more accurate delinquent taxes due.