Elected Officials
Courts
Departments
Initiatives
Open Government
About
Login / Register
Home
/
Property & Tax Records
/
Property Records
/
Property & Tax Search
/
Parcel Profile
/
Print View
Search for Another Parcel
Parcel Profile
Historical Card
Sketches
Photos
Tax Map
Taxes
Print View
Print This Page
Address: 63 SUNSET DR
Parcel: 37007006008200
Parcel Profile
Address
63 | SUNSET | DR
Street Status
UNPAVED | PRIVATE
School District
NORTH EAST SCHOOL
Acreage
0.1463
Classification
R
Land Use Code
SINGLE FAMILY
Legal Description
63 SUNSET DR 75 X 85
Square Feet
1642
Topo
LEVEL
Utility
ALL PUBLIC
Zoning
Please contact your municipal zoning officer
Deed Book
2021
Deed Page
008098
2026 Tax Values
Land Value / Taxable
32,700 / 32,700.00
Building Value / Taxable
68,900 / 68,900.00
Total Value / Taxable
101,600 / 101,600.00
Clean & Green
Inactive
Homestead Status
Inactive
Farmstead Status
Inactive
Lerta Amount
0
Lerta Expiration Year
0
Residential Data
Card 1
Style
CONVENTIONAL
Basement
CRAWL
Year Built
1922
Exterior Wall
ALUMINUM/VINYL
Total Living Area
1642
Full Baths
1
Half Baths
1
Fuel Type
NONE
Heating
NONE
Heating System
NONE
Stories
2.0
Total Bedrooms
2
Total Family Rooms
0
Total Rooms
4
Fireplaces
1
Other Buildings & Yards
No OBY Data Found
Sales History
Sale Date
Type
Price
Book / Page
Other Info
4/6/2021
LAND & BUILDING
205000
2021 / 008098
DEED
12/12/2014
LAND & BUILDING
180000
2014 / 026802
WARRANTY/SURVIVORSHIP DEED
5/4/2007
LAND & BUILDING
0
1413 / 1691
WARRANTY/SURVIVORSHIP DEED
6/25/1996
LAND & BUILDING
16300
448 / 2024
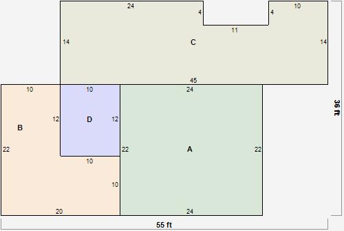
Parcel Sketches
Residential Card 1
A
MAIN
528 square feet
B
WDDCK WOOD DECKS
320 square feet
C
1S FR ONE STORY FRAME
586 square feet
D
WDDCK WOOD DECKS WDDCK WOOD DECKS
120 square feet
Parcel Images