Elected Officials
Courts
Departments
Initiatives
Open Government
About
Login / Register
Home
/
Property & Tax Records
/
Property Records
/
Property & Tax Search
/
Parcel Profile
/
Print View
Search for Another Parcel
Parcel Profile
Historical Card
Sketches
Photos
Tax Map
Taxes
Print View
Print This Page
Address: 208 WINDSWEPT DR
Parcel: 37012018006800
Parcel Profile
Address
208 | WINDSWEPT | DR
Street Status
UNPAVED | PRIVATE
School District
NORTH EAST SCHOOL
Acreage
0.5075
Classification
R
Land Use Code
SINGLE FAMILY
Legal Description
208 WINDSWEPT DR LOTS 4 & 5 164 X 134.8 | 0.5075 AC NET
Square Feet
2258
Topo
LEVEL
Utility
GAS | WELL | SEPTIC
Zoning
Please contact your municipal zoning officer
Deed Book
2018
Deed Page
006515
2026 Tax Values
Land Value / Taxable
42,600 / 42,600.00
Building Value / Taxable
138,600 / 138,600.00
Total Value / Taxable
181,200 / 181,200.00
Clean & Green
Inactive
Homestead Status
Active
Farmstead Status
Inactive
Lerta Amount
0
Lerta Expiration Year
0
Residential Data
Card 1
Style
CONVENTIONAL
Basement
NONE
Year Built
1940
Exterior Wall
ALUMINUM/VINYL
Total Living Area
2258
Full Baths
2
Half Baths
0
Fuel Type
GAS
Heating
CENTRAL
Heating System
FORCED AIR
Stories
1.0
Total Bedrooms
4
Total Family Rooms
0
Total Rooms
7
Fireplaces
0
Other Buildings & Yards
Description
Built
Width
Length
Area
FOUR SIDE CLOSED WD POLE BLDG
1989
20
24
480
FRAME UTILITY SHED
2009
12
8
96
FRAME UTILITY SHED
2015
12
8
96
FOUR SIDE CLOSED WD POLE BLDG
2018
0
0
284
WOOD DECK
2018
0
0
55
Sales History
Sale Date
Type
Price
Book / Page
Other Info
4/10/2018
LAND & BUILDING
0
2018 / 006515
QUIT CLAIM DEED
12/9/1992
0
0244 / 0408
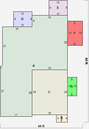
Parcel Sketches
Residential Card 1
A
MAIN
1346 square feet
B
WDDCK WOOD DECKS
24 square feet
C
UNFIN BSMT BASEMENT UNFINISHED 1S FR ONE STORY FRAME 1S FR ONE STORY FRAME
456 square feet
D
WDDCK WOOD DECKS
80 square feet
E
WDDCK WOOD DECKS
80 square feet
F
WDDCK WOOD DECKS
104 square feet
G
WDDCK WOOD DECKS
50 square feet
Parcel Images
Please note:
this tab is for informational purposes only and may not show all delinquencies, see the Taxes tab for more accurate delinquent taxes due.