Elected Officials
Courts
Departments
Initiatives
Open Government
About
Login / Register
Home
/
Property & Tax Records
/
Property Records
/
Property & Tax Search
/
Parcel Profile
/
Print View
Search for Another Parcel
Parcel Profile
Historical Card
Sketches
Photos
Tax Map
Taxes
Print View
Print This Page
Address: 140 GAY RD
Parcel: 37014025003500
Parcel Profile
Address
140 | GAY | RD
Street Status
PAVED
School District
NORTH EAST SCHOOL
Acreage
0.2600
Classification
R
Land Use Code
SINGLE FAMILY
Legal Description
140 GAY RD 10 X 104 IRR
Square Feet
1534
Topo
LEVEL
Utility
WELL | SEPTIC
Zoning
Please contact your municipal zoning officer
Deed Book
2021
Deed Page
023768
2026 Tax Values
Land Value / Taxable
95,400 / 95,400.00
Building Value / Taxable
69,200 / 69,200.00
Total Value / Taxable
164,600 / 164,600.00
Clean & Green
Inactive
Homestead Status
Inactive
Farmstead Status
Inactive
Lerta Amount
0
Lerta Expiration Year
0
Residential Data
Card 1
Style
CONVENTIONAL
Basement
NONE
Year Built
1926
Exterior Wall
FRAME
Total Living Area
1534
Full Baths
1
Half Baths
1
Fuel Type
GAS
Heating
NON CENTRAL
Heating System
NONE
Stories
2.0
Total Bedrooms
3
Total Family Rooms
0
Total Rooms
5
Fireplaces
0
Other Buildings & Yards
No OBY Data Found
Sales History
Sale Date
Type
Price
Book / Page
Other Info
9/3/2021
LAND & BUILDING
355000
2021 / 023768
SPECIAL WARRANTY DEED
7/13/2017
LAND & BUILDING
0
2017 / 014710
DEED
4/28/2017
LAND & BUILDING
0
2017 / 008666
SPECIAL WARRANTY DEED
12/20/2016
LAND & BUILDING
0
2016 / 027663
SPECIAL WARRANTY DEED
1/1/1966
0
0949 / 0514
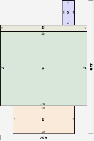
Parcel Sketches
Residential Card 1
A
MAIN
672 square feet
B
WDDCK WOOD DECKS WDDCK WOOD DECKS
180 square feet
C
FROVR FRAME OVERHANG
56 square feet
D
EFP ENCL FRAME PORCH
32 square feet
Parcel Images
Please note:
this tab is for informational purposes only and may not show all delinquencies, see the Taxes tab for more accurate delinquent taxes due.