Elected Officials
Courts
Departments
Initiatives
Open Government
About
Login / Register
Home
/
Property & Tax Records
/
Property Records
/
Property & Tax Search
/
Parcel Profile
/
Print View
Search for Another Parcel
Parcel Profile
Historical Card
Sketches
Photos
Tax Map
Taxes
Print View
Print This Page
Address: 138 GAY RD
Parcel: 37014025003600
Parcel Profile
Address
138 | GAY | RD
Street Status
PAVED
School District
NORTH EAST SCHOOL
Acreage
0.1064
Classification
R
Land Use Code
SINGLE FAMILY
Legal Description
138 GAY RD 50 X 95 IRR
Square Feet
1425
Topo
LEVEL
Utility
WELL | SEPTIC
Zoning
Please contact your municipal zoning officer
Deed Book
2011
Deed Page
019594
2026 Tax Values
Land Value / Taxable
104,800 / 104,800.00
Building Value / Taxable
70,600 / 70,600.00
Total Value / Taxable
175,400 / 175,400.00
Clean & Green
Inactive
Homestead Status
Inactive
Farmstead Status
Inactive
Lerta Amount
0
Lerta Expiration Year
0
Residential Data
Card 1
Style
CONVENTIONAL
Basement
FULL
Year Built
1866
Exterior Wall
FRAME
Total Living Area
1425
Full Baths
1
Half Baths
1
Fuel Type
GAS
Heating
CENTRAL
Heating System
FORCED AIR
Stories
1.5
Total Bedrooms
3
Total Family Rooms
0
Total Rooms
5
Fireplaces
0
Other Buildings & Yards
Description
Built
Width
Length
Area
FRAME OR CB DETACHED GARAGE
2009
12
14
168
FRAME UTILITY SHED
2008
8
10
80
Sales History
Sale Date
Type
Price
Book / Page
Other Info
8/22/2011
LAND & BUILDING
186500
2011 / 019594
DEED
10/20/2004
LAND & BUILDING
76300
1183 / 0009
DEED
4/7/2003
LAND & BUILDING
0
995 / 667
SHERIFF'S DED
10/16/1997
LAND & BUILDING
65000
524 / 1435
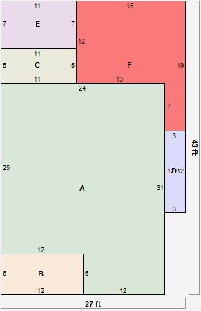
Parcel Sketches
Residential Card 1
A
MAIN
672 square feet
B
EFP ENCL FRAME PORCH
72 square feet
C
WDDCK WOOD DECKS WDDCK WOOD DECKS
55 square feet
D
MABAY MASONRY BAY
36 square feet
E
WDDCK WOOD DECKS
77 square feet
F
1S FR ONE STORY FRAME
213 square feet
Parcel Images
Please note:
this tab is for informational purposes only and may not show all delinquencies, see the Taxes tab for more accurate delinquent taxes due.