Elected Officials
Courts
Departments
Initiatives
Open Government
About
Login / Register
Home
/
Property & Tax Records
/
Property Records
/
Property & Tax Search
/
Parcel Profile
/
Print View
Search for Another Parcel
Parcel Profile
Historical Card
Sketches
Photos
Tax Map
Taxes
Print View
Print This Page
Address: 108 GAY RD
Parcel: 37014025004000
Parcel Profile
Address
108 | GAY | RD
Street Status
PAVED
School District
NORTH EAST SCHOOL
Acreage
0.1045
Classification
R
Land Use Code
SINGLE FAMILY
Legal Description
108 GAY RD 50X92
Square Feet
790
Topo
LEVEL
Utility
ALL PUBLIC
Zoning
Please contact your municipal zoning officer
Deed Book
2023
Deed Page
010373
2026 Tax Values
Land Value / Taxable
104,500 / 104,500.00
Building Value / Taxable
47,500 / 47,500.00
Total Value / Taxable
152,000 / 152,000.00
Clean & Green
Inactive
Homestead Status
Inactive
Farmstead Status
Inactive
Lerta Amount
0
Lerta Expiration Year
0
Residential Data
Card 1
Style
BUNGALOW
Basement
NONE
Year Built
1949
Exterior Wall
ALUMINUM/VINYL
Total Living Area
790
Full Baths
1
Half Baths
1
Fuel Type
GAS
Heating
CENTRAL
Heating System
FORCED AIR
Stories
1.0
Total Bedrooms
2
Total Family Rooms
0
Total Rooms
4
Fireplaces
1
Other Buildings & Yards
No OBY Data Found
Sales History
Sale Date
Type
Price
Book / Page
Other Info
6/29/2023
LAND & BUILDING
0
2023 / 010373
SPECIAL WARRANTY DEED
9/4/2019
LAND & BUILDING
220000
2019 / 017617
FIDUCIARY DEED
1/23/1995
0
0370 / 1478
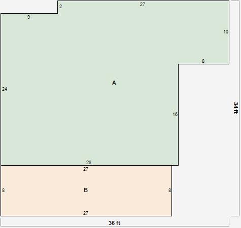
Parcel Sketches
Residential Card 1
A
MAIN
790 square feet
B
EFP ENCL FRAME PORCH
216 square feet
Parcel Images
Please note:
this tab is for informational purposes only and may not show all delinquencies, see the Taxes tab for more accurate delinquent taxes due.