Elected Officials
Courts
Departments
Initiatives
Open Government
About
Login / Register
Home
/
Property & Tax Records
/
Property Records
/
Property & Tax Search
/
Parcel Profile
/
Print View
Search for Another Parcel
Parcel Profile
Historical Card
Sketches
Photos
Tax Map
Taxes
Print View
Print This Page
Address: 102 GAY RD
Parcel: 37014025004100
Parcel Profile
Address
102 | GAY | RD
Street Status
PAVED
School District
NORTH EAST SCHOOL
Acreage
0.1045
Classification
R
Land Use Code
SINGLE FAMILY
Legal Description
102 GAY RD 50 X 92
Square Feet
1408
Topo
ROLLING
Utility
WELL | SEPTIC
Zoning
Please contact your municipal zoning officer
Deed Book
2019
Deed Page
006536
2026 Tax Values
Land Value / Taxable
104,500 / 104,500.00
Building Value / Taxable
50,200 / 50,200.00
Total Value / Taxable
154,700 / 154,700.00
Clean & Green
Inactive
Homestead Status
Inactive
Farmstead Status
Inactive
Lerta Amount
0
Lerta Expiration Year
0
Residential Data
Card 1
Style
CONVENTIONAL
Basement
NONE
Year Built
1949
Exterior Wall
ALUMINUM/VINYL
Total Living Area
1408
Full Baths
1
Half Baths
1
Fuel Type
GAS
Heating
CENTRAL
Heating System
FORCED AIR
Stories
2.0
Total Bedrooms
2
Total Family Rooms
0
Total Rooms
6
Fireplaces
1
Other Buildings & Yards
No OBY Data Found
Sales History
Sale Date
Type
Price
Book / Page
Other Info
4/15/2019
LAND & BUILDING
272500
2019 / 006536
DEED
10/18/2013
LAND & BUILDING
244000
2013 / 027600
DEED
8/6/2001
LAND & BUILDING
125000
798 / 1619
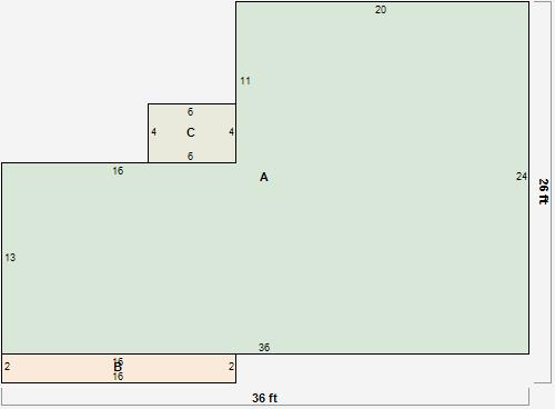
Parcel Sketches
Residential Card 1
A
MAIN
688 square feet
B
FROVR FRAME OVERHANG
32 square feet
C
EFP ENCL FRAME PORCH
24 square feet
Parcel Images
Please note:
this tab is for informational purposes only and may not show all delinquencies, see the Taxes tab for more accurate delinquent taxes due.