Elected Officials
Courts
Departments
Initiatives
Open Government
About
Login / Register
Home
/
Property & Tax Records
/
Property Records
/
Property & Tax Search
/
Parcel Profile
/
Print View
Search for Another Parcel
Parcel Profile
Historical Card
Sketches
Photos
Tax Map
Taxes
Print View
Print This Page
Address: 180 SEAGULL LN
Parcel: 37015018004100
Parcel Profile
Address
180 | SEAGULL | LN
Street Status
PAVED
School District
NORTH EAST SCHOOL
Acreage
1.5000
Classification
R
Land Use Code
SINGLE FAMILY
Legal Description
180 SEAGULL LN LOT 1 1.50 AC | REF. MB 2003-98
Square Feet
2640
Topo
LEVEL
Utility
ALL PUBLIC
Zoning
Please contact your municipal zoning officer
Deed Book
1537
Deed Page
0620
2025 Tax Values
Land Value / Taxable
126,000 / 126,000.00
Building Value / Taxable
145,500 / 145,500.00
Total Value / Taxable
271,500 / 271,500.00
Clean & Green
Inactive
Homestead Status
Inactive
Farmstead Status
Inactive
Lerta Amount
0
Lerta Expiration Year
0
Residential Data
Card 1
Style
OLD STYLE
Basement
PART
Year Built
1860
Exterior Wall
ALUMINUM/VINYL
Total Living Area
2640
Full Baths
1
Half Baths
0
Fuel Type
GAS
Heating
CENTRAL
Heating System
HOT WATER
Stories
2.0
Total Bedrooms
3
Total Family Rooms
0
Total Rooms
7
Fireplaces
1
Other Buildings & Yards
Description
Built
Width
Length
Area
FRAME OR CB DETACHED GARAGE
1986
24
32
768
Sales History
Sale Date
Type
Price
Book / Page
Other Info
12/29/2008
LAND & BUILDING
0
1537 / 0620
DEED
5/1/2006
LAND & BUILDING
300000
1323 / 2378
DEED
11/2/2005
LAND & BUILDING
0
1283 / 2328
DEED
5/12/1975
0
1150 / 0204
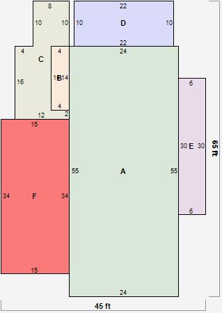
Parcel Sketches
Residential Card 1
A
MAIN
1320 square feet
B
WDDCK WOOD DECKS WDDCK WOOD DECKS
56 square feet
C
WDDCK WOOD DECKS
216 square feet
D
EFP ENCL FRAME PORCH
220 square feet
E
OFP OPEN FRAME PORCH
180 square feet
F
MA_PT CONC/MAS PATIO
510 square feet
Parcel Images