Elected Officials
Courts
Departments
Initiatives
Open Government
About
Login / Register
Home
/
Property & Tax Records
/
Property Records
/
Property & Tax Search
/
Parcel Profile
/
Print View
Search for Another Parcel
Parcel Profile
Historical Card
Sketches
Photos
Tax Map
Taxes
Print View
Print This Page
Address: 831 E GAY RD
Parcel: 37015027001201
Parcel Profile
Address
831 | E | GAY | RD
Street Status
PAVED
School District
NORTH EAST SCHOOL
Acreage
1.6200
Classification
R
Land Use Code
SINGLE FAMILY
Legal Description
831 E GAY RD 1.62 AC
Square Feet
2868
Topo
LEVEL
Utility
WELL | SEPTIC
Zoning
Please contact your municipal zoning officer
Deed Book
1167
Deed Page
1050
2026 Tax Values
Land Value / Taxable
42,800 / 42,800.00
Building Value / Taxable
172,100 / 172,100.00
Total Value / Taxable
214,900 / 214,900.00
Clean & Green
Inactive
Homestead Status
Active
Farmstead Status
Inactive
Lerta Amount
0
Lerta Expiration Year
0
Residential Data
Card 1
Style
OLD STYLE
Basement
PART
Year Built
1900
Exterior Wall
FRAME
Total Living Area
2868
Full Baths
2
Half Baths
1
Fuel Type
OIL
Heating
CENTRAL
Heating System
FORCED AIR
Stories
2.0
Total Bedrooms
5
Total Family Rooms
0
Total Rooms
13
Fireplaces
0
Other Buildings & Yards
Description
Built
Width
Length
Area
FRAME OR CB DETACHED GARAGE
2014
28
48
1344
CANOPY ONLY
2014
8
48
384
Sales History
Sale Date
Type
Price
Book / Page
Other Info
8/25/2004
LAND & BUILDING
125000
1167 / 1050
SPECIAL WARRANTY DEED
12/12/1997
0
0533 / 1439
3/14/1997
LAND & BUILDING
80000
488 / 313
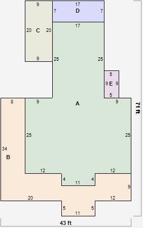
Parcel Sketches
Residential Card 1
A
MAIN
1344 square feet
B
OFP OPEN FRAME PORCH
598 square feet
C
1S FR ONE STORY FRAME
180 square feet
D
MA_PT CONC/MAS PATIO
119 square feet
E
EFP ENCL FRAME PORCH
45 square feet
Parcel Images
Please note:
this tab is for informational purposes only and may not show all delinquencies, see the Taxes tab for more accurate delinquent taxes due.