Elected Officials
Courts
Departments
Initiatives
Open Government
About
Login / Register
Home
/
Property & Tax Records
/
Property Records
/
Property & Tax Search
/
Parcel Profile
/
Print View
Search for Another Parcel
Parcel Profile
Historical Card
Sketches
Photos
Tax Map
Taxes
Print View
Print This Page
Address: 11731 E MIDDLE RD
Parcel: 37017039000901
Parcel Profile
Address
11731 | E | MIDDLE | RD
Street Status
PAVED
School District
NORTH EAST SCHOOL
Acreage
0.2840
Classification
R
Land Use Code
SINGLE FAMILY
Legal Description
11731 MIDDLE RD 100.41 X 177.81 IRREG | 0.284 AC NET 0.343 AC GROSS
Square Feet
1537
Topo
LEVEL
Utility
GAS | WELL | SEPTIC
Zoning
Please contact your municipal zoning officer
Deed Book
2020
Deed Page
021210
2026 Tax Values
Land Value / Taxable
23,000 / 23,000.00
Building Value / Taxable
53,900 / 53,900.00
Total Value / Taxable
76,900 / 76,900.00
Clean & Green
Inactive
Homestead Status
Active
Farmstead Status
Inactive
Lerta Amount
0
Lerta Expiration Year
0
Residential Data
Card 1
Style
CONVENTIONAL
Basement
FULL
Year Built
1915
Exterior Wall
ALUMINUM/VINYL
Total Living Area
1537
Full Baths
1
Half Baths
0
Fuel Type
GAS
Heating
CENTRAL
Heating System
FORCED AIR
Stories
2.0
Total Bedrooms
3
Total Family Rooms
0
Total Rooms
7
Fireplaces
0
Other Buildings & Yards
No OBY Data Found
Sales History
Sale Date
Type
Price
Book / Page
Other Info
10/12/2020
LAND & BUILDING
80000
2020 / 021210
SPECIAL WARRANTY DEED
10/21/2016
LAND & BUILDING
350000
2016 / 022907
SPECIAL WARRANTY DEED
3/12/1991
0
0152 / 1278
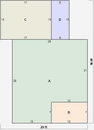
Parcel Sketches
Residential Card 1
A
MAIN
616 square feet
B
OFP OPEN FRAME PORCH 1S FR ONE STORY FRAME
84 square feet
C
1S FR ONE STORY FRAME
221 square feet
D
OFP OPEN FRAME PORCH
78 square feet
Parcel Images
Please note:
this tab is for informational purposes only and may not show all delinquencies, see the Taxes tab for more accurate delinquent taxes due.