Elected Officials
Courts
Departments
Initiatives
Open Government
About
Login / Register
Home
/
Property & Tax Records
/
Property Records
/
Property & Tax Search
/
Parcel Profile
/
Print View
Search for Another Parcel
Parcel Profile
Historical Card
Sketches
Photos
Tax Map
Taxes
Print View
Print This Page
Address: 11821 E MIDDLE RD
Parcel: 37017039001200
Parcel Profile
Address
11821 | E | MIDDLE | RD
Street Status
PAVED
School District
NORTH EAST SCHOOL
Acreage
5.8280
Classification
R
Land Use Code
SINGLE FAMILY
Legal Description
11821 E MIDDLE RD 5.828 AC
Square Feet
1462
Topo
LEVEL
Utility
GAS | WELL | SEPTIC
Zoning
Please contact your municipal zoning officer
Deed Book
2015
Deed Page
018595
2026 Tax Values
Land Value / Taxable
59,700 / 3,800.00
Building Value / Taxable
57,700 / 57,700.00
Total Value / Taxable
117,400 / 61,500.00
Clean & Green
Active
Homestead Status
Inactive
Farmstead Status
Inactive
Lerta Amount
0
Lerta Expiration Year
0
Residential Data
Card 1
Style
CONVENTIONAL
Basement
FULL
Year Built
1932
Exterior Wall
ALUMINUM/VINYL
Total Living Area
1462
Full Baths
1
Half Baths
1
Fuel Type
GAS
Heating
CENTRAL
Heating System
FORCED AIR
Stories
2.0
Total Bedrooms
3
Total Family Rooms
0
Total Rooms
8
Fireplaces
0
Other Buildings & Yards
Description
Built
Width
Length
Area
FRAME OR CB DETACHED GARAGE
1932
16
23
368
Sales History
Sale Date
Type
Price
Book / Page
Other Info
8/25/2015
LAND & BUILDING
115000
2015 / 018595
FIDUCIARY DEED
7/29/1997
0
0511 / 0039
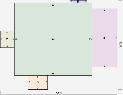
Parcel Sketches
Residential Card 1
A
MAIN
728 square feet
B
OFP OPEN FRAME PORCH
35 square feet
C
MA STOOP/TERR MAS STOOP
30 square feet
D
FRBAY FRAME BAY OFP OPEN FRAME PORCH
6 square feet
E
EFP ENCL FRAME PORCH
189 square feet
Parcel Images
Please note:
this tab is for informational purposes only and may not show all delinquencies, see the Taxes tab for more accurate delinquent taxes due.