Elected Officials
Courts
Departments
Initiatives
Open Government
About
Login / Register
Home
/
Property & Tax Records
/
Property Records
/
Property & Tax Search
/
Parcel Profile
/
Print View
Search for Another Parcel
Parcel Profile
Historical Card
Sketches
Photos
Tax Map
Taxes
Print View
Print This Page
Address: 11781 BUFFALO RD
Parcel: 37017073001200
Parcel Profile
Address
11781 | BUFFALO | RD
Street Status
PAVED
School District
NORTH EAST SCHOOL
Acreage
1.1381
Classification
R
Land Use Code
SINGLE FAMILY
Legal Description
11781 BUFFALO RD TR 152 120X413.12
Square Feet
1497
Topo
LEVEL
Utility
GAS | WELL | SEPTIC
Zoning
Please contact your municipal zoning officer
Deed Book
1545
Deed Page
0561
2026 Tax Values
Land Value / Taxable
34,700 / 34,700.00
Building Value / Taxable
63,700 / 63,700.00
Total Value / Taxable
98,400 / 98,400.00
Clean & Green
Inactive
Homestead Status
Active
Farmstead Status
Inactive
Lerta Amount
0
Lerta Expiration Year
0
Residential Data
Card 1
Style
CAPE
Basement
FULL
Year Built
1930
Exterior Wall
ALUMINUM/VINYL
Total Living Area
1497
Full Baths
1
Half Baths
0
Fuel Type
GAS
Heating
CENTRAL
Heating System
FORCED AIR
Stories
1.0
Total Bedrooms
2
Total Family Rooms
0
Total Rooms
6
Fireplaces
0
Other Buildings & Yards
Description
Built
Width
Length
Area
FRAME OR CB DETACHED GARAGE
2000
24
24
576
Sales History
Sale Date
Type
Price
Book / Page
Other Info
7/26/1984
0
1545 / 0561
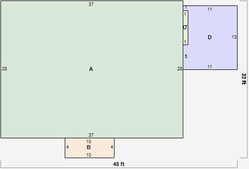
Parcel Sketches
Residential Card 1
A
MAIN
1036 square feet
B
1S FR ONE STORY FRAME
40 square feet
C
FRBAY FRAME BAY
7 square feet
D
EFP ENCL FRAME PORCH
136 square feet
Parcel Images
Please note:
this tab is for informational purposes only and may not show all delinquencies, see the Taxes tab for more accurate delinquent taxes due.