Elected Officials
Courts
Departments
Initiatives
Open Government
About
Login / Register
Home
/
Property & Tax Records
/
Property Records
/
Property & Tax Search
/
Parcel Profile
/
Print View
Search for Another Parcel
Parcel Profile
Historical Card
Sketches
Photos
Tax Map
Taxes
Print View
Print This Page
Address: 3240 S CEMETERY RD
Parcel: 37019070001900
Parcel Profile
Address
3240 | S | CEMETERY | RD
Street Status
PAVED
School District
NORTH EAST SCHOOL
Acreage
1.5853
Classification
R
Land Use Code
SINGLE FAMILY
Legal Description
3240 S CEMETERY RD 1.5853 AC
Square Feet
1698
Topo
LEVEL
Utility
PUBLIC WATER | GAS | SEPTIC
Zoning
Please contact your municipal zoning officer
Deed Book
2017
Deed Page
023159
2026 Tax Values
Land Value / Taxable
42,600 / 42,600.00
Building Value / Taxable
84,500 / 84,500.00
Total Value / Taxable
127,100 / 127,100.00
Clean & Green
Inactive
Homestead Status
Active
Farmstead Status
Inactive
Lerta Amount
0
Lerta Expiration Year
0
Residential Data
Card 1
Style
CAPE
Basement
FULL
Year Built
1956
Exterior Wall
FRAME
Total Living Area
1698
Full Baths
2
Half Baths
0
Fuel Type
GAS
Heating
CENTRAL A/C
Heating System
FORCED AIR
Stories
1.0
Total Bedrooms
3
Total Family Rooms
0
Total Rooms
6
Fireplaces
0
Other Buildings & Yards
Description
Built
Width
Length
Area
FOUR SIDE CLOSED WD POLE BLDG
2018
24
24
576
1S LEAN TO
2018
24
8
192
Sales History
Sale Date
Type
Price
Book / Page
Other Info
10/20/2017
LAND & BUILDING
134000
2017 / 023159
FIDUCIARY DEED
1/5/1994
0
0313 / 0822
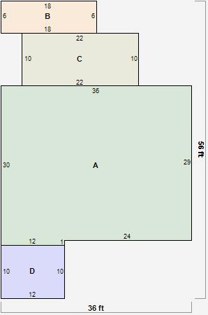
Parcel Sketches
Residential Card 1
A
MAIN
1056 square feet
B
UNFIN BSMT BASEMENT UNFINISHED EFP ENCL FRAME PORCH
108 square feet
C
UNFIN BSMT BASEMENT UNFINISHED 1S FR ONE STORY FRAME
220 square feet
D
WDDCK WOOD DECKS
120 square feet
Parcel Images
Please note:
this tab is for informational purposes only and may not show all delinquencies, see the Taxes tab for more accurate delinquent taxes due.