Elected Officials
Courts
Departments
Initiatives
Open Government
About
Login / Register
Home
/
Property & Tax Records
/
Property Records
/
Property & Tax Search
/
Parcel Profile
/
Print View
Search for Another Parcel
Parcel Profile
Historical Card
Sketches
Photos
Tax Map
Taxes
Print View
Print This Page
Address: 10734 ACKERMAN LN
Parcel: 37019093000300
Parcel Profile
Address
10734 | ACKERMAN | LN
Street Status
PAVED
School District
NORTH EAST SCHOOL
Acreage
9.0000
Classification
R
Land Use Code
SINGLE FAMILY
Legal Description
10734 ACKERMAN LANE 9 AC CAL
Square Feet
1448
Topo
LEVEL
Utility
WELL | GAS | SEPTIC
Zoning
Please contact your municipal zoning officer
Deed Book
1280
Deed Page
1399
2025 Tax Values
Land Value / Taxable
72,500 / 72,500.00
Building Value / Taxable
41,130 / 41,130.00
Total Value / Taxable
113,630 / 113,630.00
Clean & Green
Inactive
Homestead Status
Inactive
Farmstead Status
Inactive
Lerta Amount
0
Lerta Expiration Year
0
Residential Data
Card 1
Style
OLD STYLE
Basement
FULL
Year Built
1920
Exterior Wall
ALUMINUM/VINYL
Total Living Area
1448
Full Baths
1
Half Baths
0
Fuel Type
GAS
Heating
NONE
Heating System
NONE
Stories
1.5
Total Bedrooms
4
Total Family Rooms
0
Total Rooms
7
Fireplaces
0
Other Buildings & Yards
Description
Built
Width
Length
Area
FRAME UTILITY SHED
1930
8
8
64
FRAME OR CB DETACHED GARAGE
2009
24
32
768
Sales History
Sale Date
Type
Price
Book / Page
Other Info
10/21/2005
LAND & BUILDING
0
1280 / 1399
SPECIAL WARRANTY DEED
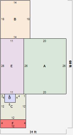
Parcel Sketches
Residential Card 1
A
MAIN
520 square feet
B
UNFIN BSMT BASEMENT UNFINISHED 1S FR ONE STORY FRAME
252 square feet
C
EFP ENCL FRAME PORCH
124 square feet
D
MA STOOP/TERR MAS STOOP
20 square feet
E
UNFIN BSMT BASEMENT UNFINISHED 1S FR ONE STORY FRAME
286 square feet
F
OFP OPEN FRAME PORCH
48 square feet
Parcel Images