Elected Officials
Courts
Departments
Initiatives
Open Government
About
Login / Register
Home
/
Property & Tax Records
/
Property Records
/
Property & Tax Search
/
Parcel Profile
/
Print View
Search for Another Parcel
Parcel Profile
Historical Card
Sketches
Photos
Tax Map
Taxes
Print View
Print This Page
Address: 9851 W MAIN RD
Parcel: 37020069000500
Parcel Profile
Address
9851 | W | MAIN | RD
Street Status
PAVED
School District
NORTH EAST SCHOOL
Acreage
0.6983
Classification
R
Land Use Code
SINGLE FAMILY
Legal Description
9851 W MAIN RD 105 X 226.19 IRR
Square Feet
2339
Topo
LEVEL
Utility
GAS | WELL | SEPTIC
Zoning
Please contact your municipal zoning officer
Deed Book
2013
Deed Page
028288
2025 Tax Values
Land Value / Taxable
23,000 / 23,000.00
Building Value / Taxable
48,430 / 48,430.00
Total Value / Taxable
71,430 / 71,430.00
Clean & Green
Inactive
Homestead Status
Active
Farmstead Status
Inactive
Lerta Amount
0
Lerta Expiration Year
0
Residential Data
Card 1
Style
CONVENTIONAL
Basement
PART
Year Built
1925
Exterior Wall
ALUMINUM/VINYL
Total Living Area
2339
Full Baths
1
Half Baths
1
Fuel Type
GAS
Heating
CENTRAL
Heating System
FORCED AIR
Stories
1.5
Total Bedrooms
3
Total Family Rooms
0
Total Rooms
5
Fireplaces
0
Other Buildings & Yards
Description
Built
Width
Length
Area
FRAME OR CB DETACHED GARAGE
1977
24
35
840
Sales History
Sale Date
Type
Price
Book / Page
Other Info
10/25/2013
LAND & BUILDING
60000
2013 / 028288
DEED
8/1/2013
LAND & BUILDING
0
2013 / 019975
DEED
8/6/2012
LAND & BUILDING
1605
2012 / 021156
SHERIFF'S DED
5/19/2006
LAND & BUILDING
79700
1329 / 0403
DEED
2/2/2006
LAND & BUILDING
0
1304 / 0351
SHERIFF'S DED
12/31/2003
LAND & BUILDING
79900
1098 / 1277
WARRANTY/SURVIVORSHIP DEED
9/21/1999
LAND & BUILDING
56000
663 / 709
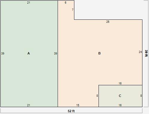
Parcel Sketches
Residential Card 1
A
MAIN
819 square feet
B
1S FR ONE STORY FRAME
906 square feet
C
OFP OPEN FRAME PORCH
128 square feet
Parcel Images