Elected Officials
Courts
Departments
Initiatives
Open Government
About
Login / Register
Home
/
Property & Tax Records
/
Property Records
/
Property & Tax Search
/
Parcel Profile
/
Print View
Search for Another Parcel
Parcel Profile
Historical Card
Sketches
Photos
Tax Map
Taxes
Print View
Print This Page
Address: 3981 STATION RD
Parcel: 37023091000100
Parcel Profile
Address
3981 | STATION | RD
Street Status
PAVED
School District
NORTH EAST SCHOOL
Acreage
0.7013
Classification
R
Land Use Code
SINGLE FAMILY
Legal Description
3981 STATION RD 178.05 X 169.6 IRR | PT OF PCL 36-9-58-3 TOTAL = 0.7523
Square Feet
1266
Topo
LEVEL
Utility
ALL PUBLIC
Zoning
Please contact your municipal zoning officer
Deed Book
907
Deed Page
1654
2026 Tax Values
Land Value / Taxable
37,200 / 37,200.00
Building Value / Taxable
53,500 / 53,500.00
Total Value / Taxable
90,700 / 90,700.00
Clean & Green
Inactive
Homestead Status
Active
Farmstead Status
Inactive
Lerta Amount
0
Lerta Expiration Year
0
Residential Data
Card 1
Style
CONVENTIONAL
Basement
NONE
Year Built
1847
Exterior Wall
ALUMINUM/VINYL
Total Living Area
1266
Full Baths
1
Half Baths
0
Fuel Type
GAS
Heating
CENTRAL
Heating System
FORCED AIR
Stories
1.0
Total Bedrooms
4
Total Family Rooms
0
Total Rooms
7
Fireplaces
0
Other Buildings & Yards
Description
Built
Width
Length
Area
FRAME UTILITY SHED
1920
20
42
840
Sales History
Sale Date
Type
Price
Book / Page
Other Info
8/5/2002
LAND & BUILDING
82500
0907 / 1654
WARRANTY/SURVIVORSHIP DEED
5/23/2000
LAND & BUILDING
0
705 / 229
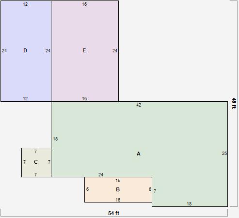
Parcel Sketches
Residential Card 1
A
MAIN
882 square feet
B
OFP OPEN FRAME PORCH
96 square feet
C
EFP ENCL FRAME PORCH
49 square feet
D
OFP OPEN FRAME PORCH
288 square feet
E
1S FR ONE STORY FRAME
384 square feet
Parcel Images
Please note:
this tab is for informational purposes only and may not show all delinquencies, see the Taxes tab for more accurate delinquent taxes due.