Elected Officials
Courts
Departments
Initiatives
Open Government
About
Login / Register
Home
/
Property & Tax Records
/
Property Records
/
Property & Tax Search
/
Parcel Profile
/
Print View
Search for Another Parcel
Parcel Profile
Historical Card
Sketches
Photos
Tax Map
Taxes
Print View
Print This Page
Address: 4335 RTE 89 RD
Parcel: 37023091002700
Parcel Profile
Address
4335 | RTE 89 | RD
Street Status
PAVED
School District
NORTH EAST SCHOOL
Acreage
1.1300
Classification
R
Land Use Code
SINGLE FAMILY
Legal Description
4335 STATION RD 100 X IRR
Square Feet
1262
Topo
LEVEL
Utility
ALL PUBLIC
Zoning
Please contact your municipal zoning officer
Deed Book
2021
Deed Page
009297
2026 Tax Values
Land Value / Taxable
40,800 / 40,800.00
Building Value / Taxable
54,510 / 54,510.00
Total Value / Taxable
95,310 / 95,310.00
Clean & Green
Inactive
Homestead Status
Active
Farmstead Status
Inactive
Lerta Amount
0
Lerta Expiration Year
0
Residential Data
Card 1
Style
CONVENTIONAL
Basement
FULL
Year Built
1920
Exterior Wall
FRAME
Total Living Area
1262
Full Baths
1
Half Baths
0
Fuel Type
GAS
Heating
CENTRAL
Heating System
FORCED AIR
Stories
2.0
Total Bedrooms
3
Total Family Rooms
0
Total Rooms
13
Fireplaces
0
Other Buildings & Yards
Description
Built
Width
Length
Area
FLAT BARN
1920
32
37
1184
CARPORT
2014
16
33
528
OFP (DWELLING TYPE)
2014
16
8
128
FLAT BARN ADDITION
2000
9
14
126
Sales History
Sale Date
Type
Price
Book / Page
Other Info
4/16/2021
LAND & BUILDING
0
2021 / 009297
SPECIAL WARRANTY DEED
8/23/2004
LAND & BUILDING
65000
1166 / 0980
WARRANTY/SURVIVORSHIP DEED
3/13/1991
0
0152 / 1488
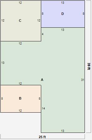
Parcel Sketches
Residential Card 1
A
MAIN
559 square feet
B
EFP ENCL FRAME PORCH
96 square feet
C
UNFIN BSMT BASEMENT UNFINISHED 1S FR ONE STORY FRAME
144 square feet
D
EFP ENCL FRAME PORCH
104 square feet
Parcel Images
Please note:
this tab is for informational purposes only and may not show all delinquencies, see the Taxes tab for more accurate delinquent taxes due.