Elected Officials
Courts
Departments
Initiatives
Open Government
About
Login / Register
Home
/
Property & Tax Records
/
Property Records
/
Property & Tax Search
/
Parcel Profile
/
Print View
Search for Another Parcel
Parcel Profile
Historical Card
Sketches
Photos
Tax Map
Taxes
Print View
Print This Page
Address: 4281 STATION RD
Parcel: 37023091002900
Parcel Profile
Address
4281 | STATION | RD
Street Status
PAVED
School District
NORTH EAST SCHOOL
Acreage
1.6900
Classification
R
Land Use Code
SINGLE FAMILY
Legal Description
4281 STATION RD 1.069 AC CAL
Square Feet
2558
Topo
LEVEL
Utility
ALL PUBLIC
Zoning
Please contact your municipal zoning officer
Deed Book
0147
Deed Page
0008
2026 Tax Values
Land Value / Taxable
43,000 / 43,000.00
Building Value / Taxable
94,100 / 94,100.00
Total Value / Taxable
137,100 / 137,100.00
Clean & Green
Inactive
Homestead Status
Active
Farmstead Status
Inactive
Lerta Amount
0
Lerta Expiration Year
0
Residential Data
Card 1
Style
OLD STYLE
Basement
FULL
Year Built
1850
Exterior Wall
ALUMINUM/VINYL
Total Living Area
2558
Full Baths
1
Half Baths
1
Fuel Type
GAS
Heating
CENTRAL
Heating System
FORCED AIR
Stories
2.0
Total Bedrooms
3
Total Family Rooms
0
Total Rooms
10
Fireplaces
0
Other Buildings & Yards
No OBY Data Found
Sales History
Sale Date
Type
Price
Book / Page
Other Info
12/24/1990
0
0147 / 0008
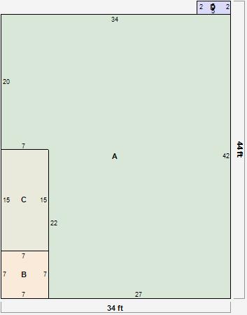
Parcel Sketches
Residential Card 1
A
MAIN
1274 square feet
B
EFP ENCL FRAME PORCH
49 square feet
C
OFP OPEN FRAME PORCH
105 square feet
D
FRBAY FRAME BAY
10 square feet
Parcel Images
Please note:
this tab is for informational purposes only and may not show all delinquencies, see the Taxes tab for more accurate delinquent taxes due.