Elected Officials
Courts
Departments
Initiatives
Open Government
About
Login / Register
Home
/
Property & Tax Records
/
Property Records
/
Property & Tax Search
/
Parcel Profile
/
Print View
Search for Another Parcel
Parcel Profile
Historical Card
Sketches
Photos
Tax Map
Taxes
Print View
Print This Page
Address: 4057 STATION RD
Parcel: 37023091003700
Parcel Profile
Address
4057 | STATION | RD
Street Status
PAVED
School District
NORTH EAST SCHOOL
Acreage
0.2500
Classification
R
Land Use Code
THREE FAMILY
Legal Description
4057 STATION RD TR 155 66 X 165
Square Feet
2728
Topo
LEVEL
Utility
ALL PUBLIC
Zoning
Please contact your municipal zoning officer
Deed Book
1302
Deed Page
1837
2026 Tax Values
Land Value / Taxable
29,600 / 29,600.00
Building Value / Taxable
36,300 / 36,300.00
Total Value / Taxable
65,900 / 65,900.00
Clean & Green
Inactive
Homestead Status
Inactive
Farmstead Status
Inactive
Lerta Amount
0
Lerta Expiration Year
0
Residential Data
Card 1
Style
OLD STYLE
Basement
FULL
Year Built
1860
Exterior Wall
COMPOSITION
Total Living Area
2728
Full Baths
3
Half Baths
0
Fuel Type
GAS
Heating
CENTRAL
Heating System
FORCED AIR
Stories
2.0
Total Bedrooms
6
Total Family Rooms
0
Total Rooms
13
Fireplaces
0
Other Buildings & Yards
No OBY Data Found
Sales History
Sale Date
Type
Price
Book / Page
Other Info
1/27/2006
LAND & BUILDING
0
1302 / 1837
DEED
8/15/1994
0
0349 / 1574
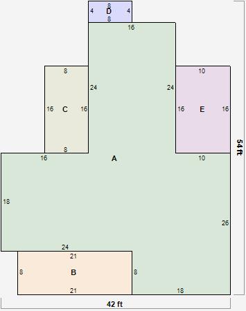
Parcel Sketches
Residential Card 1
A
MAIN
1284 square feet
B
EFP ENCL FRAME PORCH
168 square feet
C
OFP OPEN FRAME PORCH
128 square feet
D
MA STOOP/TERR MAS STOOP
32 square feet
E
1S FR ONE STORY FRAME
160 square feet
Parcel Images
Please note:
this tab is for informational purposes only and may not show all delinquencies, see the Taxes tab for more accurate delinquent taxes due.