Elected Officials
Courts
Departments
Initiatives
Open Government
About
Login / Register
Home
/
Property & Tax Records
/
Property Records
/
Property & Tax Search
/
Parcel Profile
/
Print View
Search for Another Parcel
Parcel Profile
Historical Card
Sketches
Photos
Tax Map
Taxes
Print View
Print This Page
Address: 11191 E LAW RD
Parcel: 37023103000400
Parcel Profile
Address
11191 | E | LAW | RD
Street Status
PAVED
School District
NORTH EAST SCHOOL
Acreage
2.0000
Classification
R
Land Use Code
SINGLE FAMILY
Legal Description
11191 E LAW RD 2 AC CAL
Square Feet
1904
Topo
LEVEL
Utility
PUBLIC WATER | GAS | SEPTIC
Zoning
Please contact your municipal zoning officer
Deed Book
0579
Deed Page
2332
2026 Tax Values
Land Value / Taxable
44,300 / 44,300.00
Building Value / Taxable
70,900 / 70,900.00
Total Value / Taxable
115,200 / 115,200.00
Clean & Green
Inactive
Homestead Status
Active
Farmstead Status
Inactive
Lerta Amount
0
Lerta Expiration Year
0
Residential Data
Card 1
Style
OLD STYLE
Basement
FULL
Year Built
1870
Exterior Wall
ALUMINUM/VINYL
Total Living Area
1904
Full Baths
1
Half Baths
0
Fuel Type
GAS
Heating
CENTRAL
Heating System
FORCED AIR
Stories
1.5
Total Bedrooms
2
Total Family Rooms
0
Total Rooms
8
Fireplaces
0
Other Buildings & Yards
Description
Built
Width
Length
Area
FOUR SIDE CLOSED WD POLE BLDG
2005
32
36
1152
Sales History
Sale Date
Type
Price
Book / Page
Other Info
7/28/1998
LAND & BUILDING
87500
0579 / 2332
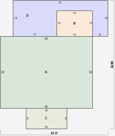
Parcel Sketches
Residential Card 1
A
MAIN
1008 square feet
B
1S FR ONE STORY FRAME
140 square feet
C
OFP OPEN FRAME PORCH
128 square feet
D
WDDCK WOOD DECKS
378 square feet
Parcel Images
Please note:
this tab is for informational purposes only and may not show all delinquencies, see the Taxes tab for more accurate delinquent taxes due.