Elected Officials
Courts
Departments
Initiatives
Open Government
About
Login / Register
Home
/
Property & Tax Records
/
Property Records
/
Property & Tax Search
/
Parcel Profile
/
Print View
Search for Another Parcel
Parcel Profile
Historical Card
Sketches
Photos
Tax Map
Taxes
Print View
Print This Page
Address: 7277 FINDLEY LAKE RD
Parcel: 37025108000902
Parcel Profile
Address
7277 | FINDLEY LAKE | RD
Street Status
PAVED
School District
NORTH EAST SCHOOL
Acreage
3.4100
Classification
R
Land Use Code
SINGLE FAMILY
Legal Description
7277 FINDLEY LAKE RD LOT A & B 3.41 AC NET | 3.731 AC GROSS | REF MB 2008-7
Square Feet
1260
Topo
ABOVE STREET
Utility
GAS | WELL | SEPTIC
Zoning
Please contact your municipal zoning officer
Deed Book
2018
Deed Page
006342
2026 Tax Values
Land Value / Taxable
45,800 / 38,400.00
Building Value / Taxable
66,900 / 66,900.00
Total Value / Taxable
112,700 / 105,300.00
Clean & Green
Active
Homestead Status
Inactive
Farmstead Status
Inactive
Lerta Amount
0
Lerta Expiration Year
0
Residential Data
Card 1
Style
OLD STYLE
Basement
FULL
Year Built
1890
Exterior Wall
ALUMINUM/VINYL
Total Living Area
1260
Full Baths
1
Half Baths
1
Fuel Type
GAS
Heating
CENTRAL
Heating System
FORCED AIR
Stories
1.5
Total Bedrooms
3
Total Family Rooms
1
Total Rooms
8
Fireplaces
0
Other Buildings & Yards
Description
Built
Width
Length
Area
FRAME UTILITY SHED
1900
12
20
240
BANK BARN
1900
30
40
1200
Sales History
Sale Date
Type
Price
Book / Page
Other Info
4/6/2018
LAND & BUILDING
0
2018 / 006342
QUIT/CLAIM SURVIVORSHIP
1/30/2018
LAND & BUILDING
100000
2018 / 001843
SPECIAL WARRANTY DEED
1/13/2011
LAND & BUILDING
80000
2011 / 001294
WARRANTY/SURVIVORSHIP DEED
12/17/1998
0
0607 / 0084
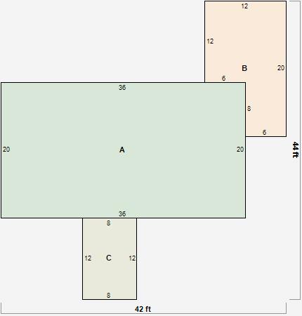
Parcel Sketches
Residential Card 1
A
MAIN
720 square feet
B
EFP ENCL FRAME PORCH
192 square feet
C
WDDCK WOOD DECKS
96 square feet
Parcel Images
Please note:
this tab is for informational purposes only and may not show all delinquencies, see the Taxes tab for more accurate delinquent taxes due.